NEWLY LISTED
SWIPE FOR MORE IMAGES
$3,000 CAD
604 BLOOR STREET WEST
Toronto (annex), Ontario M6G 1K4
Canada
Toronto (annex), Ontario M6G 1K4
Canada
3 bedrooms
2 full baths
Residential For Sale, Single Family
Sale price per sqm: 0
Remarks:
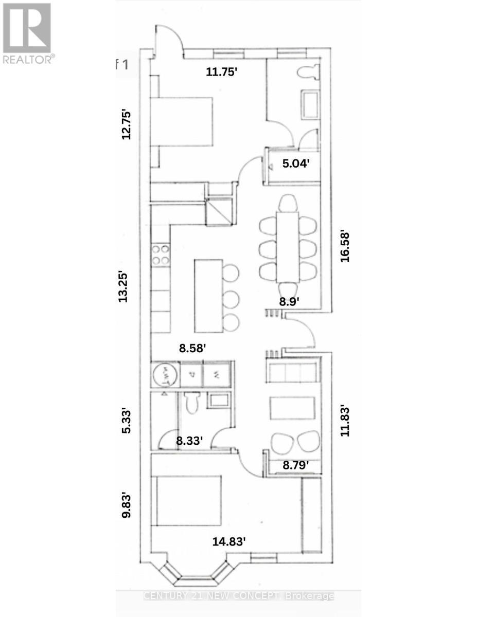
Bright, modern, and renovated 2 large bedrooms plus den apartment at Bathurst & Bloor. High efficiency vinyl casement windows and blinds, laminate floors throughout, Intercom System and camera included.1000 SF of living space plus 100 SF private deck. Large kitchen with quartz countertop, high gloss cabinets, island and skylight. Ample storage throughout. $200K spent on new roof in 2025 Fall. Tenant to pay heat and hydro. Steps from Bathurst subway station. (id:42016)
Features:
- Heating System: Forced Air, Electric
- Cooling System: Central Air Conditioning (zoned)
Location:
604 BLOOR STREET WEST, Toronto (annex), Ontario M6G 1K4, Canada
Listed By CENTURY 21 New Concept Brokerage
The Residential For Sale, Single Family located at 604 BLOOR STREET WEST, Toronto (annex), Ontario M6G 1K4, Canada is currently for sale. 604 BLOOR STREET WEST, Toronto (annex), Ontario M6G 1K4, Canada is listed for $3,000 CAD. This property has 3 bedrooms, 2 full baths. If the property located at 604 BLOOR STREET WEST, Toronto (annex), Ontario M6G 1K4, Canada isn't what you're looking for, search Ontario Real Estate to see other Homes For Sale in Toronto (annex).
















