NEWLY LISTED
SWIPE FOR MORE IMAGES
$557,900 CAD
1121 HARMONY ROAD
Belleville, Ontario K0K 1V0
Canada
Belleville, Ontario K0K 1V0
Canada
3 bedrooms
4 baths
Residential For Sale, Single Family
Sale price per sqm: 0
Remarks:
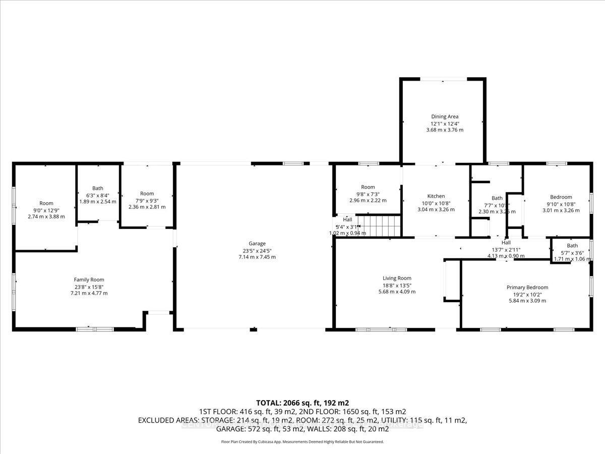
Welcome to 1121 Harmony Road, offering the balance of rural living and everyday convenience. Ideally located just minutes north of Belleville and Highway 401, this property provides a quiet country setting with easy access to amenities, services, and commuter routes. Situated in a sought-after location within the Harmony Public School district, the area continues to attract strong interest from those seeking space and accessibility. This bungalow offers a functional layout with 2+1 bedrooms and 2.5 bathrooms, along with a finished basement providing additional living space. The main floor features bright living and dining areas with access to the rear deck from the dining room, along with a pantry. The lower level includes a rec room, third bedroom, bathroom, and storage areas. A notable feature of the property is the attached secondary space with a separate entrance, offering a range of potential uses such as an in-law suite, home-based business, or workspace. Set on a wide lot with open views and privacy to either side, the property also offers ample parking, a double-car garage with doors at front and back, and a detached outbuilding with services. A solid opportunity in a desirable rural setting, close to Belleville and major routes.
Features:
- Location: Neighborhood: Thurlow Ward
- Exterior Description: Vinyl Siding
- Heating System: Forced Air
- Cooling System: Central Air Conditioning (zoned)
Location:
1121 HARMONY ROAD, Belleville, Ontario K0K 1V0, Canada
Listed By CENTURY 21 Lanthorn Real Estate Ltd. Brokerage
The Residential For Sale, Single Family located at 1121 HARMONY ROAD, Belleville, Ontario K0K 1V0, Canada is currently for sale. 1121 HARMONY ROAD, Belleville, Ontario K0K 1V0, Canada is listed for $557,900 CAD. This property has 3 bedrooms, 4 bathrooms. If the property located at 1121 HARMONY ROAD, Belleville, Ontario K0K 1V0, Canada isn't what you're looking for, search Ontario Real Estate to see other Homes For Sale in Belleville.

















































