NEWLY LISTED
SWIPE FOR MORE IMAGES
$705,000 CAD
3525 HIGHWAY 37 N/A
Belleville, Ontario K0K 2Y0
Canada
Belleville, Ontario K0K 2Y0
Canada
Remarks:
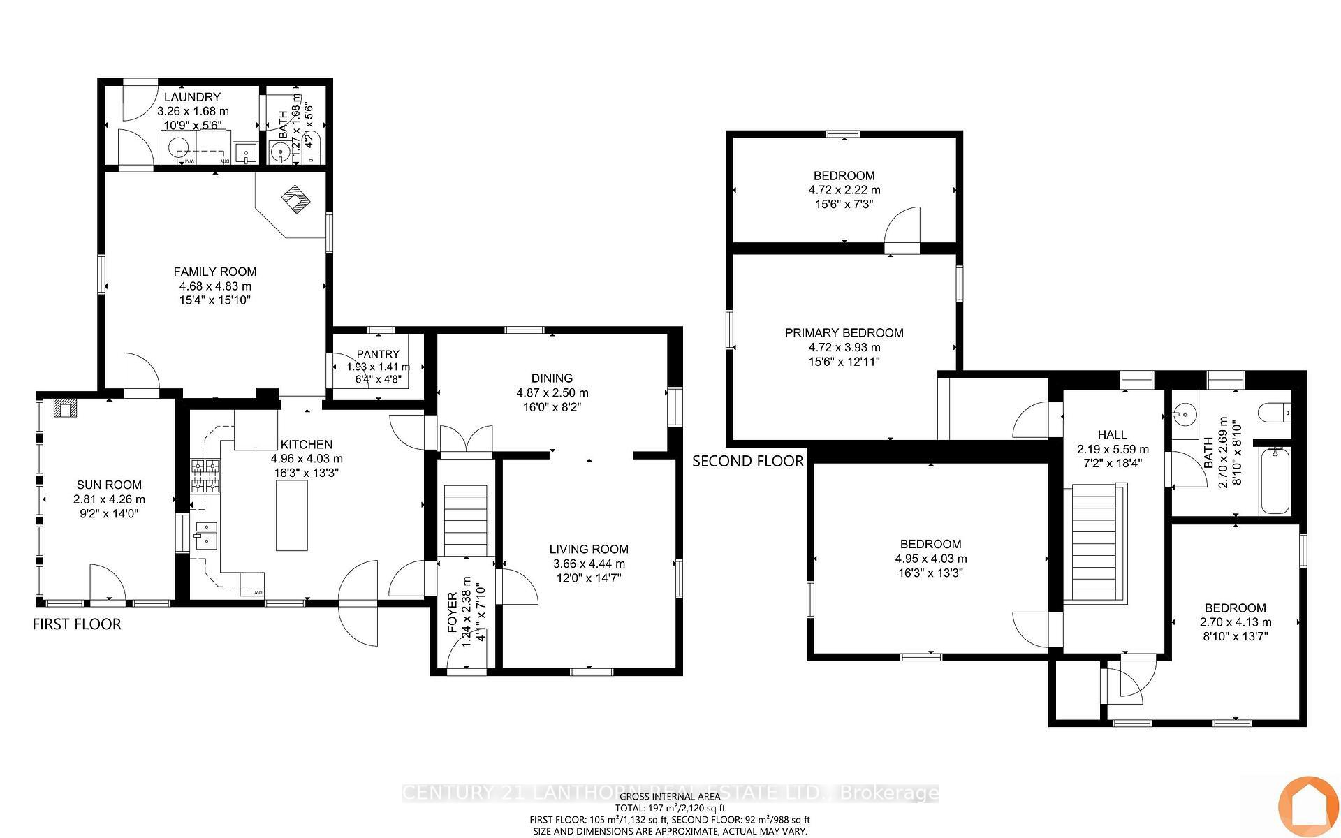
Situated on 56 acres of rested land, this farm is waiting for you to bring your horses! This land can be certified organic, as sprays have not been used and fields have been rested & used for hay. So many upgrades, including: newer furnace & AC & new hot water tank, upgraded insulation & drywall upstairs, new flooring in many rooms, fresh paint, new wood stove, new eaves & downspouts, barn repairs (foundation) & new perennials & trees planted! This property could be home to an equestrian operation & features a large, multi-stall, post-and-beam barn with a level-entry hayloft & walkouts from the stalls and additional rooms - leaving options for tack room, drive bay and feed room. The hayloft towers, with impressive hand-hewn timbers, that frame the bones of a structure that has stood the test of time and the fieldstone foundation has been repointed by a mason. The acreage is rolling, and has a skating pond in the back acreage, a manicured path takes you from the riding area & paddocks to the farthest stretch of your property. An abundance of hay has been cultivated from the farm's rich soil, which makes the farm self-sustaining (not to mention fruit-bearing trees -plums, apples & more)! The fields have their own northerly entrance to ease burden on the main driveway to your red brick Century home. Handsomely perched above a rock-lined perennial garden, the home has a generous porch for plenty of seating & family BBQs, fenced yard for kids & dogs. Step inside to the home's kitchen with new appliances, and a cozy living room with new and efficient fireplace. Formal dining room, family room (currently used as an office), bathroom, laundry & mudroom round out the main level. Upstairs you will find 3 generous bedrooms with new flooring, upgraded drywall and insulation & new paint, as well as a generous family washroom. This acreage needs to be seen and this home is move-in ready! Easy access on a main road to 401 & plenty of room to grow your farm or homestead.
Features:
- Location: Neighborhood: Thurlow Ward
- Property Features: Fireplace
- Heating System: Forced Air
- Cooling System: Central Air Conditioning (zoned)
Location:
3525 HIGHWAY 37 N/A, Belleville, Ontario K0K 2Y0, Canada
Listed By CENTURY 21 Lanthorn Real Estate Ltd. Brokerage
The Residential For Sale, Single Family located at 3525 HIGHWAY 37 N/A, Belleville, Ontario K0K 2Y0, Canada is currently for sale. 3525 HIGHWAY 37 N/A, Belleville, Ontario K0K 2Y0, Canada is listed for $705,000 CAD. This property has 3 bedrooms, 2 bathrooms. If the property located at 3525 HIGHWAY 37 N/A, Belleville, Ontario K0K 2Y0, Canada isn't what you're looking for, search Ontario Real Estate to see other Homes For Sale in Belleville.















































