NEWLY LISTED
SWIPE FOR MORE IMAGES
$599,000 CAD
62 MCIVOR DRIVE
Northern Bruce Peninsula, Ontario N0H 1Z0
Canada
Northern Bruce Peninsula, Ontario N0H 1Z0
Canada
4 bedrooms
2 full baths
Residential For Sale, Single Family
Sale price per sqm: 0
Remarks:
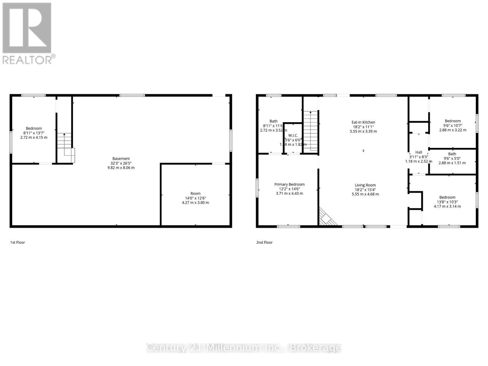
Set on a double lot (approx. 200x200) just under an acre (0.9 acre) , this 4 bedroom home sits quietly among the trees, reached by a winding driveway that naturally creates privacy from the road. Just across the street, two excellent Lake Huron water access points make it easy to slip down for a swim, launch a kayak, or catch one of the area's unforgettable sunsets over the water. Built in 2010, the home was planned to feel open, bright, and comfortable when the whole family is here. The main living space features vaulted ceilings and an open layout, allowing the kitchen, dining, and living areas to flow together without feeling crowded. Large windows pull in natural light throughout the day and keep the surrounding trees part of the view. The main level offers just over 1,400 sq ft of living space, with a full walkout basement already well underway with new drywall installed and primed. With the finishing touches, the lower level has the potential to nearly double the total living space, giving plenty of room for additional bedrooms, recreation space, or a separate area for guests. Construction was done with longevity and efficiency in mind. With R36 insulation in the walls, R60 in the attic, and 30-year shingles, the home was built well beyond typical standards. A brand new forced air propane furnace (March 2026), along with backup convection heaters, keeps things comfortable year-round while helping manage energy costs. Outside, the spaces feel just as welcoming. The 48-foot front porch offers plenty of room to relax with a coffee in the morning or a drink in the evening, while the large rear deck looks out over a flagstone path that leads to the fire pit area. It's an easy place to gather for barbecues, campfires, and long nights under clear Peninsula skies. The setting is quiet and friendly and just steps to Lake Huron, with the kind of surroundings that naturally lend themselves to slow mornings, full beach days, and evenings around the fire. (id:42016)
Features:
- Exterior Description: Vinyl Siding
- Property Features: Fireplace
- Heating System: Forced Air
Location:
62 MCIVOR DRIVE, Northern Bruce Peninsula, Ontario N0H 1Z0, Canada
Listed By CENTURY 21 Millennium Inc. Brokerage
The Residential For Sale, Single Family located at 62 MCIVOR DRIVE, Northern Bruce Peninsula, Ontario N0H 1Z0, Canada is currently for sale. 62 MCIVOR DRIVE, Northern Bruce Peninsula, Ontario N0H 1Z0, Canada is listed for $599,000 CAD. This property has 4 bedrooms, 2 full baths. If the property located at 62 MCIVOR DRIVE, Northern Bruce Peninsula, Ontario N0H 1Z0, Canada isn't what you're looking for, search Ontario Real Estate to see other Homes For Sale in Northern Bruce Peninsula.


















































