NEWLY LISTED
SWIPE FOR MORE IMAGES
$3,856,000 CAD
5901 50 AVENUE
Innisfail, Alberta T4G 1R7
Canada
Innisfail, Alberta T4G 1R7
Canada
54.991 ha ::
135.88 acres
Land for sale, Vacant Land
Sale price per sqm: 5.16
Remarks:
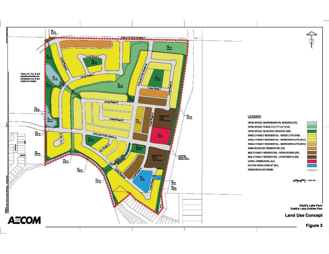
ATTENTION DEVELOPERS & INVESTORS!! 136 Acres of PRIME Residential Mixed Development land with 1785 feet of Dodd's Lake Shoreline in the Heart of Innisfail Alberta. This unique property is an Excellent investment and Development opportunity. An Extensive study with outline plan is in place with the current local ASP & Geo Technical Report. There are approximately 310 single detached dwellings, 65 semi-detached dwellings, 104 row housing units and 257 apartment units with a small neighborhood commercial parcel included in the plan. The properties wetlands and creek only add to the charm that this neighborhood will be developed into with the town fully supportive to any new developers plans for build out. Don't miss this rare opportunity! "Visit REALTOR® website for additional information"
Features:
- Property Features: Fireplace
Location:
5901 50 AVENUE, Innisfail, Alberta T4G 1R7, Canada
Listed By CENTURY 21 All Stars Realty Ltd.
The Land for sale, Vacant Land located at 5901 50 AVENUE, Innisfail, Alberta T4G 1R7, Canada is currently for sale. 5901 50 AVENUE, Innisfail, Alberta T4G 1R7, Canada is listed for $3,856,000 CAD. If the property located at 5901 50 AVENUE, Innisfail, Alberta T4G 1R7, Canada isn't what you're looking for, search Alberta Real Estate to see other Land For Sale in Innisfail.

















