SWIPE FOR MORE IMAGES
$1,650,000 CAD
10208 TENTH LINE
Halton Hills (georgetown), Ontario L0P 1K0
Canada
Halton Hills (georgetown), Ontario L0P 1K0
Canada
4 bedrooms
1 full bath, 1 half bath
Residential For Sale, Single Family
Sale price per sqm: 0
Remarks:
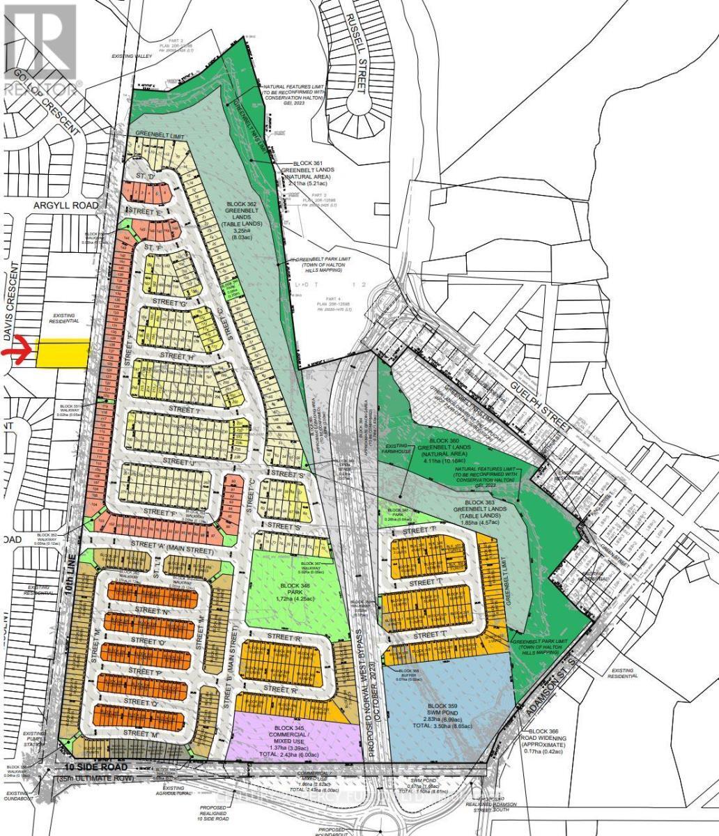
Custom House or Future development Opportunity. A rare opportunity to secure a premium 3/4 acre lot with a 125ft front right in the city, directly across from the approved Southeast Georgetown Secondary Plan community. This oversized parcel offers exceptional potential -whether you're an investor seeking a future development opportunity in a rapidly growing corridor, or an end user looking to build a stunning custom house on one of the few large lots remaining on the street. With major residential growth, parks, trails, and mixed-use development planned across the road, this property also presents strong long-term upside and potential for multi-residential or redevelopment possibilities (subject to approvals). A strategic land hold or a showcase custom home site - the choice is yours. The existing bungalow on a full treed lot with privacy features 3+1bedrooms, a basement with a separate entrance, and an amazing kitchen overlooking the serene backyard - ideal for both everyday living and entertaining. The private outdoor oasis is complete with an inground concrete pool and stylish bar, creating the perfect setting for summer gatherings. A large driveway provides ample parking, and the location offers quick access to Brampton and Mississauga while being within walking distance to banks, grocery stores, and restaurants. Whether you choose to move in as is, renovate and personalize, or explore future development potential, the existing home is in excellent condition and presents a fantastic opportunity for homeowners and investors alike. (id:42016)
Features:
- Heating System: Forced Air
- Cooling System: Central Air Conditioning (zoned)
Location:
10208 TENTH LINE, Halton Hills (georgetown), Ontario L0P 1K0, Canada
Listed By CENTURY 21 Percy Fulton Ltd. Brokerage
The Residential For Sale, Single Family located at 10208 TENTH LINE, Halton Hills (georgetown), Ontario L0P 1K0, Canada is currently for sale. 10208 TENTH LINE, Halton Hills (georgetown), Ontario L0P 1K0, Canada is listed for $1,650,000 CAD. This property has 4 bedrooms, 1 full bath, 1 half bath. If the property located at 10208 TENTH LINE, Halton Hills (georgetown), Ontario L0P 1K0, Canada isn't what you're looking for, search Ontario Real Estate to see other Homes For Sale in Halton Hills (georgetown).

















































