SWIPE FOR MORE IMAGES
€297,600 EUR
33380 Biganos, Aquitaine
France
France
970.9 sqft ::
90.2 m2
3 bedrooms
Residential For Sale, Townhouse
Sale price per sqm: 3,836.43
Remarks: [Translate *]
[MAISON INDIVIDUELLE NEUVE T4 - BIGANOS - 1 garage]
CENTURY 21 Duprat & Associés vous présente un programme de maisons individuelles situé au calme, le long d'une piste cyclable dans un cadre verdoyant.
Un projet qui allie confort moderne et respect de l'environnement.
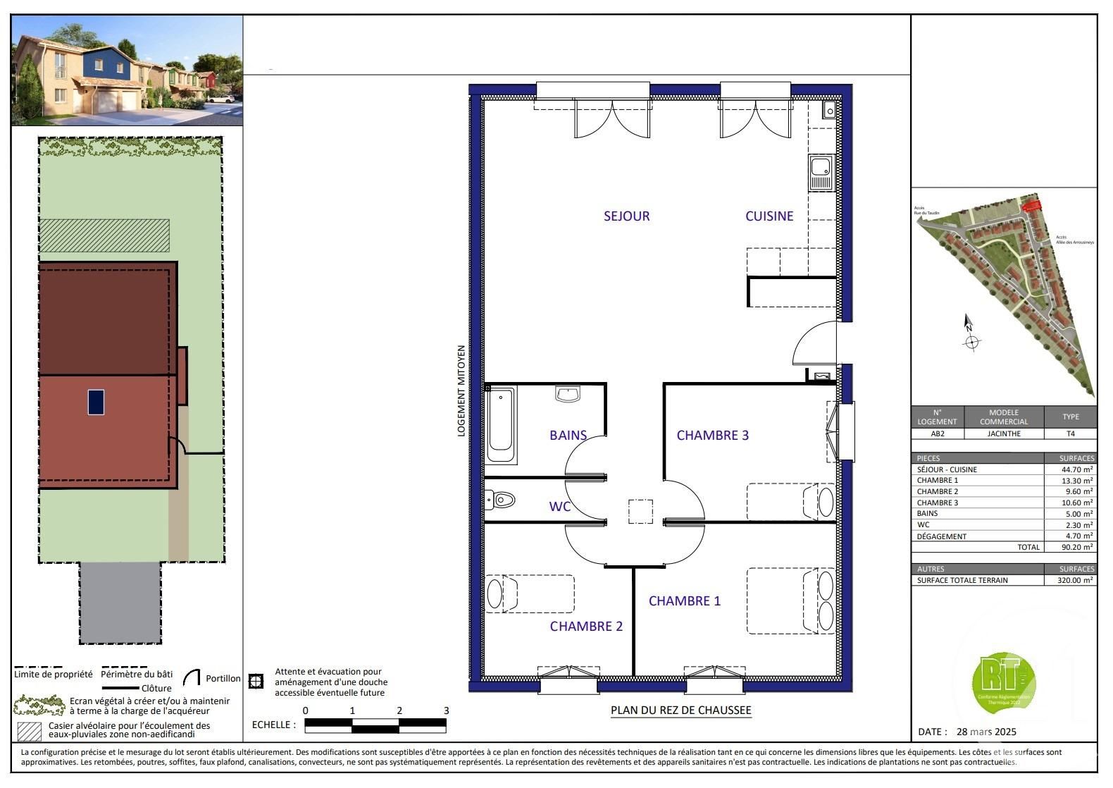
Maison neuve PLAIN PIED type T4 de 90,20 m² sur un terrain de 478 m².
Elle est composée d'un séjour cuisine de 44,70 m², d'un WC de 2,30 m², d'une chambre parentale de 13,30 m², une 2ème chambre de 9,60 m², d'une 3ème chambre de 10,60 m², 1 salle de bains 5 m², 1 dégagement de 4,70 m².
Le chauffage est individuel au gaz de ville. Vous bénéficiez de l'isolation aux normes RT 2012.
Un équipement spécial de panneaux photovoltaïques fournira un courant électrique d'appoint autoconsommé par le logement.
Au cœur de la région Nouvelle-Aquitaine, la commune de Biganos offre un cadre de vie exceptionnel, idéal pour ceux qui cherchent à concilier nature, confort et accessibilité.
Avec une population en croissance continue, Biganos séduit de plus en plus de familles et de nouveaux arrivants.
À seulement quelques minutes du célèbre Bassin d'Arcachon,cette commune attire par ses paysages préservés et son dynamisme économique.
Proximité avec le Bassin d'Arcachon : Les amoureux de la nature et des activités nautiques trouveront ici un
véritable havre de paix.
La ville bénéficie de la proximité immédiate des plages et des forêts, offrant un cadre de vie idéal
pour les familles et les amateurs de plein air.
Une qualité de vie optimisée : Avec plus de 84 % de maisons individuelles, Biganos préserve son caractère
pavillonnaire tout en offrant des infrastructures modernes.
Les nombreuses pistes cyclables et espaces verts encouragent la mobilité douce et garantissent un environnement sain et agréable.
L'offre en services publics, de loisirs et de commerces fait de cette commune un lieu où il fait bon vivre.
Ce programme résidentiel propose des maisons, parfaitement adaptées aux besoins des familles et des investisseurs, avec des surfaces allant de 70 m² à 100 m², du T3 au T5.
Un projet qui reflète l'âme de Biganos : Inspiré des cabanes du port de Biganos, le design architectural des maisons mêle charme local et modernité.
Chaque maison, qu'elle soit de plain-pied ou à étage, s'intègre harmonieusement à l'environnement grâce à une architecture respectueuse et durable.
Les matériaux utilisés, ainsi que les bardages colorés, rappellent l'identité locale tout en offrant une esthétique contemporaine.
Un environnement pensé pour le bien-être : Les cheminements doux et les espaces verts répartis au sein
du projet offrent aux résidents un cadre de vie propice à la détente et aux activités en plein air.
L'aménagement a été conçu pour favoriser une vie communautaire apaisante, idéale pour les familles.
Vous recherchez une maison à la construction, c'est un cadre de vie
exceptionnel alliant modernité, confort et nature.
Ne manquez pas cette opportunité unique de faire partie d'un projet
immobilier d'envergure, parfaitement intégré à son environnement.
PRIX DIRECT PROMOTEUR
FRAIS DE NOTAIRE REDUIT.
PRET A TAUX 0% pour les primo-accédants sous condition.
Contactez notre Responsable Vente de Neuf pour obtenir les tarifs et disponibilités de ce programme au 05.57.17.00.45
Retrouvez nos autres biens à vendre sur le Bassin d'Arcachon directement sur notre site www.century21addi.com
CENTURY 21 Duprat & Associés vous présente un programme de maisons individuelles situé au calme, le long d'une piste cyclable dans un cadre verdoyant.
Un projet qui allie confort moderne et respect de l'environnement.
Maison neuve PLAIN PIED type T4 de 90,20 m² sur un terrain de 478 m².
Elle est composée d'un séjour cuisine de 44,70 m², d'un WC de 2,30 m², d'une chambre parentale de 13,30 m², une 2ème chambre de 9,60 m², d'une 3ème chambre de 10,60 m², 1 salle de bains 5 m², 1 dégagement de 4,70 m².
Le chauffage est individuel au gaz de ville. Vous bénéficiez de l'isolation aux normes RT 2012.
Un équipement spécial de panneaux photovoltaïques fournira un courant électrique d'appoint autoconsommé par le logement.
Au cœur de la région Nouvelle-Aquitaine, la commune de Biganos offre un cadre de vie exceptionnel, idéal pour ceux qui cherchent à concilier nature, confort et accessibilité.
Avec une population en croissance continue, Biganos séduit de plus en plus de familles et de nouveaux arrivants.
À seulement quelques minutes du célèbre Bassin d'Arcachon,cette commune attire par ses paysages préservés et son dynamisme économique.
Proximité avec le Bassin d'Arcachon : Les amoureux de la nature et des activités nautiques trouveront ici un
véritable havre de paix.
La ville bénéficie de la proximité immédiate des plages et des forêts, offrant un cadre de vie idéal
pour les familles et les amateurs de plein air.
Une qualité de vie optimisée : Avec plus de 84 % de maisons individuelles, Biganos préserve son caractère
pavillonnaire tout en offrant des infrastructures modernes.
Les nombreuses pistes cyclables et espaces verts encouragent la mobilité douce et garantissent un environnement sain et agréable.
L'offre en services publics, de loisirs et de commerces fait de cette commune un lieu où il fait bon vivre.
Ce programme résidentiel propose des maisons, parfaitement adaptées aux besoins des familles et des investisseurs, avec des surfaces allant de 70 m² à 100 m², du T3 au T5.
Un projet qui reflète l'âme de Biganos : Inspiré des cabanes du port de Biganos, le design architectural des maisons mêle charme local et modernité.
Chaque maison, qu'elle soit de plain-pied ou à étage, s'intègre harmonieusement à l'environnement grâce à une architecture respectueuse et durable.
Les matériaux utilisés, ainsi que les bardages colorés, rappellent l'identité locale tout en offrant une esthétique contemporaine.
Un environnement pensé pour le bien-être : Les cheminements doux et les espaces verts répartis au sein
du projet offrent aux résidents un cadre de vie propice à la détente et aux activités en plein air.
L'aménagement a été conçu pour favoriser une vie communautaire apaisante, idéale pour les familles.
Vous recherchez une maison à la construction, c'est un cadre de vie
exceptionnel alliant modernité, confort et nature.
Ne manquez pas cette opportunité unique de faire partie d'un projet
immobilier d'envergure, parfaitement intégré à son environnement.
PRIX DIRECT PROMOTEUR
FRAIS DE NOTAIRE REDUIT.
PRET A TAUX 0% pour les primo-accédants sous condition.
Contactez notre Responsable Vente de Neuf pour obtenir les tarifs et disponibilités de ce programme au 05.57.17.00.45
Retrouvez nos autres biens à vendre sur le Bassin d'Arcachon directement sur notre site www.century21addi.com
Features:
- Rooms: 4
- Reference Number: 202_2672_10866
- Number of assigned or reserved parking spaces: 0
Location:
33380 Biganos, Aquitaine, France
Listed By CENTURY 21 Duprat & Associés
The Residential For Sale, Townhouse located in 33380 Biganos, Aquitaine, France is currently for sale. This property is listed for €297,600 EUR. This property has 3 bedrooms and 90.2 m2. If this property isn't what you're looking for, search Aquitaine Real Estate to see other Homes For Sale in Biganos.





