SWIPE FOR MORE IMAGES
€290,000 EUR
Canelas
Vila Nova de Gaia, Porto 4414-007
Portugal
Vila Nova de Gaia, Porto 4414-007
Portugal
1,517.8 sqft ::
141 m2
3 bedrooms
2 baths
4 rooms
Residential For Sale, Apartment
Sale price per sqm: 2,430.04
Remarks: [Translate *]
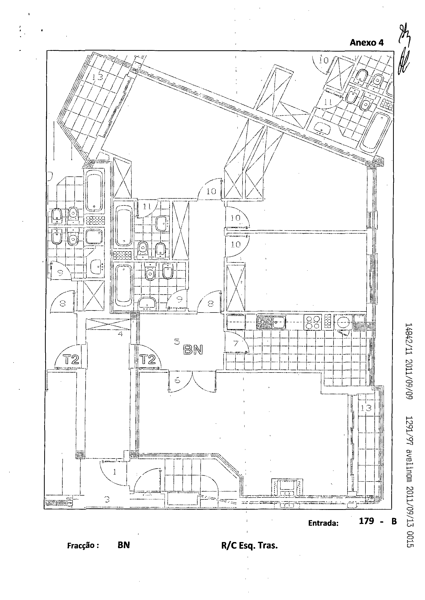
Apartamento tipologia T3 situado em Canelas, concelho de Vila Nova de Gaia, distrito do Porto.
Em bom estado de conservação, com divisões funcionais e equilibradas que garantem o conforto do dia a dia.
Características:
- T3;
- R/C;
- Prédio com elevador;
- 141m2 de área total construída;
- Caixilharia com vidro duplo;
- Armários embutidos;
- Garagem;
Composto por:
- Hall de entrada;
- Sala comum com varanda;
- Cozinha;
- Hall de quartos;
- 3 quartos sendo um uma suite;
- 2 casas de banho;
- Lavandaria;
Destaques:
- Zona tranquila;
- Espaço exterior do condomínio com parque infantil, campo de jogos e jardim;
- Boa exposição solar;
- Fácil acesso a comércio, serviços, escolas e transportes públicos
- A 5 minutos das auto-estradas A29, A44 e A1
Entre em contacto para obter mais informações.
Obtenha o seu crédito habitação de forma rápida e tranquila. Na Rede CENTURY 21 temos uma pessoa dedicada que irá acompanhar o seu processo desde o início, para que possa obter a melhor solução de crédito.
MISSÃO E VISÃO CENTURY 21
Com uma cultura de marca fortemente vincada, a C21 é guiada pela missão de oferecer continuamente uma cultura de serviço de excelência ao cliente. Tem como missão encontrar e providenciar o melhor serviço de mediação imobiliária, funcionando como uma verdadeira adjuvante e interessada no sucesso dos negócios. A dedicação, a integridade, a exigência e a especialidade nestas áreas de atuação posiciona-a como parceira de excelência para qualquer negócio.
A MARCA CENTURY 21®️
A maior rede de franchising imobiliário do mundo – fundada em 1971 tem mais de 10.000 agências, em 88 países, com mais de 130 mil agentes em sua representação. A marca C21 é um dos principais pilares de seriedade, confiança e conhecimento no que concerne à atividade imobiliária. O reconhecimento global do mercado ajuda a C21 a fortalecer a sua posição como marca de mediação imobiliária com o maior sucesso a nível local.
Em bom estado de conservação, com divisões funcionais e equilibradas que garantem o conforto do dia a dia.
Características:
- T3;
- R/C;
- Prédio com elevador;
- 141m2 de área total construída;
- Caixilharia com vidro duplo;
- Armários embutidos;
- Garagem;
Composto por:
- Hall de entrada;
- Sala comum com varanda;
- Cozinha;
- Hall de quartos;
- 3 quartos sendo um uma suite;
- 2 casas de banho;
- Lavandaria;
Destaques:
- Zona tranquila;
- Espaço exterior do condomínio com parque infantil, campo de jogos e jardim;
- Boa exposição solar;
- Fácil acesso a comércio, serviços, escolas e transportes públicos
- A 5 minutos das auto-estradas A29, A44 e A1
Entre em contacto para obter mais informações.
Obtenha o seu crédito habitação de forma rápida e tranquila. Na Rede CENTURY 21 temos uma pessoa dedicada que irá acompanhar o seu processo desde o início, para que possa obter a melhor solução de crédito.
MISSÃO E VISÃO CENTURY 21
Com uma cultura de marca fortemente vincada, a C21 é guiada pela missão de oferecer continuamente uma cultura de serviço de excelência ao cliente. Tem como missão encontrar e providenciar o melhor serviço de mediação imobiliária, funcionando como uma verdadeira adjuvante e interessada no sucesso dos negócios. A dedicação, a integridade, a exigência e a especialidade nestas áreas de atuação posiciona-a como parceira de excelência para qualquer negócio.
A MARCA CENTURY 21®️
A maior rede de franchising imobiliário do mundo – fundada em 1971 tem mais de 10.000 agências, em 88 países, com mais de 130 mil agentes em sua representação. A marca C21 é um dos principais pilares de seriedade, confiança e conhecimento no que concerne à atividade imobiliária. O reconhecimento global do mercado ajuda a C21 a fortalecer a sua posição como marca de mediação imobiliária com o maior sucesso a nível local.
Features:
- Year Built: 2001
- Location: Subdivision: Canelas
- Number of assigned or reserved parking spaces: 1
Location:
Canelas, Vila Nova de Gaia, Porto 4414-007, Portugal
Listed By CENTURY 21 Arquitectos II
The Residential For Sale, Apartment located in Canelas, Vila Nova de Gaia, Porto 4414-007, Portugal is currently for sale. This property is listed for €290,000 EUR. This property has 3 bedrooms, 2 bathrooms and 141 m2. If this property isn't what you're looking for, search Porto Real Estate to see other Homes For Sale in Vila Nova de Gaia.

























