SWIPE FOR MORE IMAGES
€250,000 EUR
Ermesinde
Valongo, Porto 4445-408
Portugal
Valongo, Porto 4445-408
Portugal
925.7 sqft ::
86 m2
2 baths
1 room
Residential For Sale
Sale price per sqm: 3,318.6
Remarks: [Translate *]
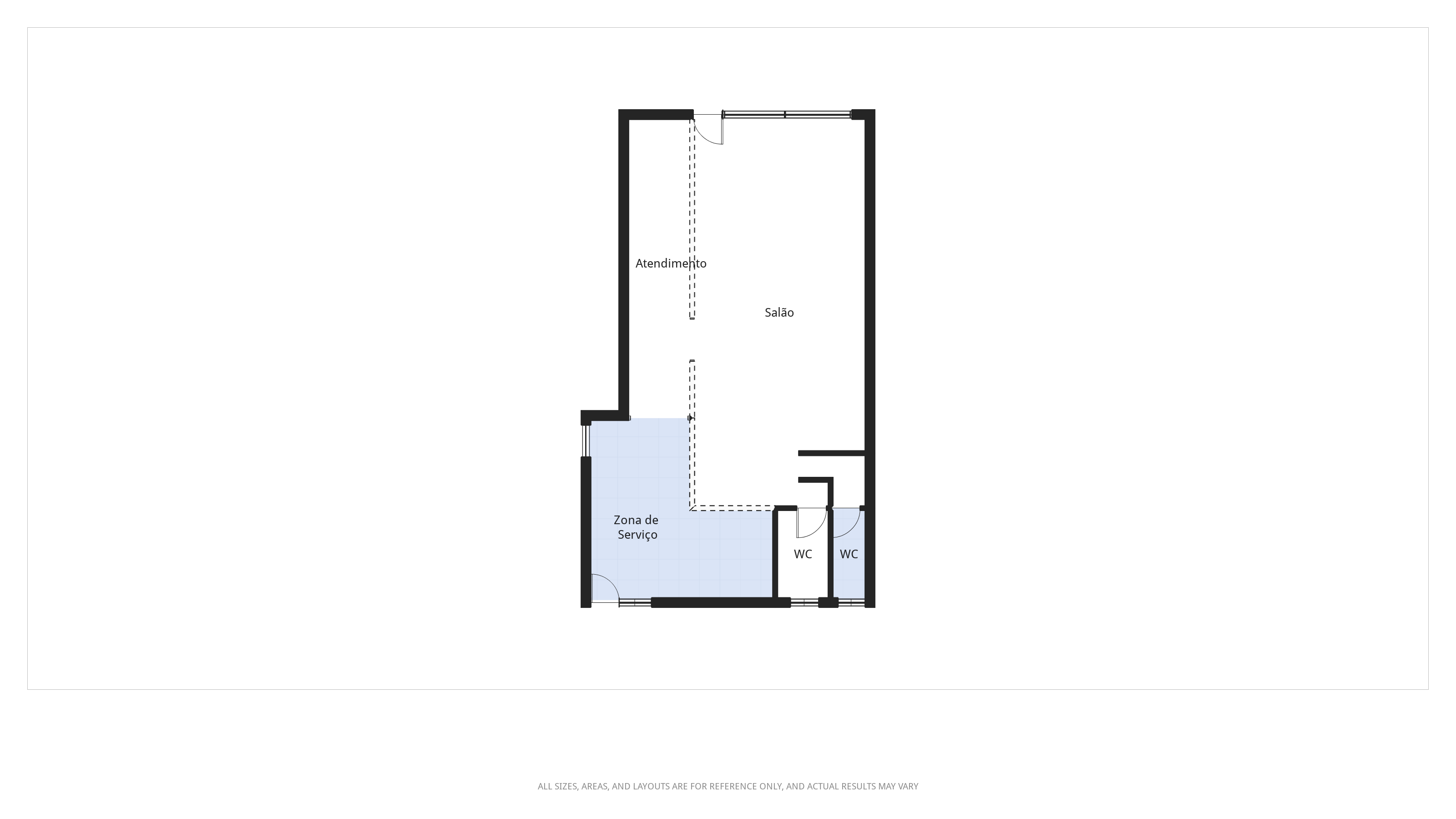
Descubra este espaço comercial localizado em Ermesinde, Valongo, uma excelente oportunidade de investimento. Com uma área de 85m² e duas casas de banho, este espaço é ideal para quem deseja iniciar ou expandir um negócio no setor da restauração. O ambiente acolhedor e a localização estratégica tornam este café uma escolha perfeita para atrair clientes locais e visitantes. Tem atualmente licença da Santa Casa da Misericórdia.
Tem ainda um espaço exterior com cerca de 100m2.
O layout do café é funcional e bem distribuído, proporcionando um espaço confortável tanto para os clientes como para a equipa. Com uma área de atendimento ampla e uma cozinha equipada, o espaço está pronto para ser utilizado. As duas casas de banho garantem comodidade para os clientes, enquanto a decoração pode ser facilmente adaptada ao estilo desejado.
Situado em Ermesinde, este café beneficia de uma localização privilegiada, com fácil acesso a transportes públicos e uma forte afluência de pessoas. Aproveite esta oportunidade para investir num negócio promissor numa das áreas mais dinâmicas do Porto.
Este imóvel, dado situar-se numa zona residencial permite uma fácil atualização para residência o que salvaguarda de imediato um excelente índice de valorização.
Não perca tempo, agende a sua visita e venha conhecer hoje mesmo!
Tem ainda um espaço exterior com cerca de 100m2.
O layout do café é funcional e bem distribuído, proporcionando um espaço confortável tanto para os clientes como para a equipa. Com uma área de atendimento ampla e uma cozinha equipada, o espaço está pronto para ser utilizado. As duas casas de banho garantem comodidade para os clientes, enquanto a decoração pode ser facilmente adaptada ao estilo desejado.
Situado em Ermesinde, este café beneficia de uma localização privilegiada, com fácil acesso a transportes públicos e uma forte afluência de pessoas. Aproveite esta oportunidade para investir num negócio promissor numa das áreas mais dinâmicas do Porto.
Este imóvel, dado situar-se numa zona residencial permite uma fácil atualização para residência o que salvaguarda de imediato um excelente índice de valorização.
Não perca tempo, agende a sua visita e venha conhecer hoje mesmo!
Features:
- Year Built: 1991
- Location: Subdivision: Ermesinde
Location:
Ermesinde, Valongo, Porto 4445-408, Portugal
Listed By CENTURY 21 Arquitectos II
The Residential For Sale located in Ermesinde, Valongo, Porto 4445-408, Portugal is currently for sale. This property is listed for €250,000 EUR. This property has 1 room, 2 bathrooms and 86 m2. If this property isn't what you're looking for, search Porto Real Estate to see other Homes For Sale in Valongo.























