NEWLY LISTED
SWIPE FOR MORE IMAGES
€160,000 EUR
85160 St Jean De Monts, Pays de la Loire
France
France
390.2 sqft ::
36.25 m2
1 bedroom
Residential For Sale, Apartment
Sale price per sqm: 5,094.71
Remarks: [Translate *]
Réf 5834 -Saint Jean de Monts Programme Neuf - Résidence Bleu Rivage À 10 minutes à pied du centre-ville, 5 minutes des commerces et à 10 minutes à vélo de la plage des Demoiselles !
Vous cherchez votre nouvelle résidence sur la côte montoise, alliant confort et qualité de vie ? Rendez-vous dans notre agence pour découvrir ce nouveau programme et choisir votre appartement.
Type : 11 Appartements T2
T2 en REZ DE CHAUSEE Bâtiment B
Nombre d'appartements : 6
Chambres : 1
Prix : À partir de 160 000 € TTC
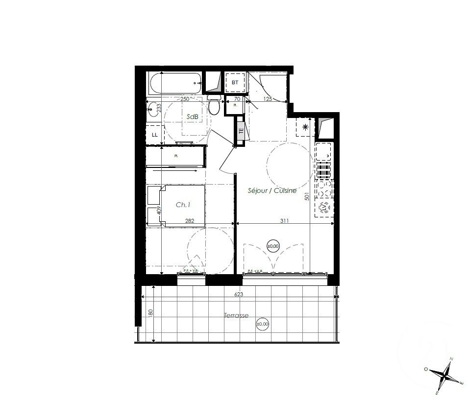
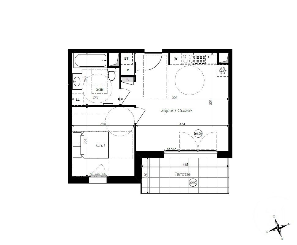
Superficie : Entre 36 m² et 42 m²
T2 en 1ER ETAGE Bâtiment A et B
Nombre d'appartements : 2
Chambres : 1
Prix : À partir de 166 000€ TTC
Superficie : Entre 36m² et 42m²
T2 en 2 EME ETAGE Bâtiment A et B
Nombre d'appartements : 3
Chambres : 1
Prix : À partir de 188 000€ TTC
Superficie : 42 m²
Chaque appartement comprend :
Une pièce de vie avec cuisine ouverte
Salle de bain ou salle d'eau
Une chambre
Une terrasse ou Balcon
Inclus : Une place de parking
Option : Possibilité d'acquérir une cave pour 4 000 € TTC.
Vous souhaitez réaliser un investissement à long terme tout en bénéficiant d'avantages fiscaux grâce à la loi Jean Brun, n'hésitez pas à venir nous rencontrer pour vous positionner sur le programme.
Ou vous recherchez simplement votre pied-à-terre pour profiter de la côte ? Passez la porte de notre agence !
Vous cherchez votre nouvelle résidence sur la côte montoise, alliant confort et qualité de vie ? Rendez-vous dans notre agence pour découvrir ce nouveau programme et choisir votre appartement.
Type : 11 Appartements T2
T2 en REZ DE CHAUSEE Bâtiment B
Nombre d'appartements : 6
Chambres : 1
Prix : À partir de 160 000 € TTC
Superficie : Entre 36 m² et 42 m²
T2 en 1ER ETAGE Bâtiment A et B
Nombre d'appartements : 2
Chambres : 1
Prix : À partir de 166 000€ TTC
Superficie : Entre 36m² et 42m²
T2 en 2 EME ETAGE Bâtiment A et B
Nombre d'appartements : 3
Chambres : 1
Prix : À partir de 188 000€ TTC
Superficie : 42 m²
Chaque appartement comprend :
Une pièce de vie avec cuisine ouverte
Salle de bain ou salle d'eau
Une chambre
Une terrasse ou Balcon
Inclus : Une place de parking
Option : Possibilité d'acquérir une cave pour 4 000 € TTC.
Vous souhaitez réaliser un investissement à long terme tout en bénéficiant d'avantages fiscaux grâce à la loi Jean Brun, n'hésitez pas à venir nous rencontrer pour vous positionner sur le programme.
Ou vous recherchez simplement votre pied-à-terre pour profiter de la côte ? Passez la porte de notre agence !
Features:
- Rooms: 2
- Reference Number: 202_2818_5834
- Year Built: 2028
- Apartment is on level: 0
- Number of Levels: 2
- Security Features: Intercom, Access control
- Association/Community Features Description: Elevators
- Number of assigned or reserved parking spaces: 1
- Parking type : Golf Cart Space/Parking, No On Street Parking
Location:
85160 St Jean De Monts, Pays de la Loire, France
Listed By CENTURY 21 La Côte Montoise
The Residential For Sale, Apartment located in 85160 St Jean De Monts, Pays de la Loire, France is currently for sale. This property is listed for €160,000 EUR. This property has 1 bedroom and 36.25 m2. If this property isn't what you're looking for, search Pays de la Loire Real Estate to see other Homes For Sale in St Jean De Monts.










