Homes For Sale: France Bretagne St Gregoire Listing #202_3198_3967
NEWLY LISTED
SWIPE FOR MORE IMAGES

€649,950 EUR

35760 St Gregoire, Bretagne
France
2,346.6 sqft :: 218 m2
4 bedrooms
2 baths
Residential For Sale, Townhouse
Sale price per sqm: 3,435.31

Yes, I would like more information from C21. Please use and/or share my information with a C21 Agent to contact me about my real estate needs.

By clicking Contact Office, I agree a C21 Agent may contact me by phone or text message including by automated means about real estate services, and that I can access real estate services without providing my phone number. I acknowledge that I have read and agree to the Terms of Use and Privacy Policy.

Remarks: [Translate *]

Century21 Dreano Immobilier (Agence de Rennes Centre) vous propose :

Au cœur du très recherché quartier de la Ricoquais à Saint-Grégoire, à quelques minutes seulement de Rennes, cette maison familiale de 218 m² bénéficie d'un emplacement rare, conjuguant calme absolu, luminosité et fort potentiel d'aménagement.

Située en fond d'impasse, la propriété offre un cadre de vie particulièrement paisible et sécurisé, très apprécié des familles. La maison profite d'une triple exposition Est, Sud et Ouest, garantissant une luminosité remarquable tout au long de la journée.

L'espace de réception comprend un vaste salon de 53 m², auquel peuvent s'ajouter une cuisine de 17 m² et une arrière-cuisine de 5 m², permettant d'envisager la création d'une superbe pièce de vie ouverte d'environ 75 m².

La maison offre un confort de vie très recherché avec une grande suite parentale au rez-de-chaussée, comprenant chambre, dressing et salle de bain, permettant une véritable vie de plain-pied.

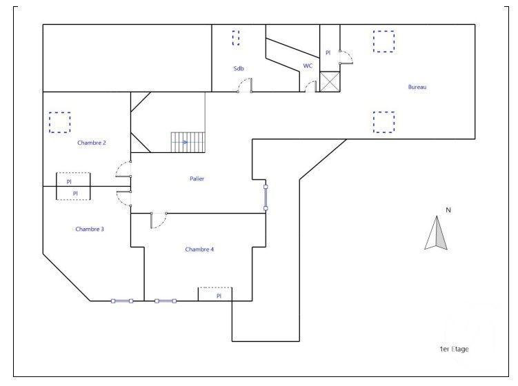
À l'étage, l'espace nuit propose trois grandes chambres, ainsi qu'un vaste espace bureau, facilement aménageable en cinquième chambre selon les besoins. Ce niveau dispose également d'une salle de bain et d'un WC indépendant, offrant un agencement particulièrement fonctionnel pour une famille.

Un double garage complète ce bien.

Habitable immédiatement, ce bien présente également un fort potentiel de rénovation et de valorisation.

La localisation constitue un véritable atout : écoles, collège et lycée à proximité immédiate, ainsi que les transports en commun accessibles rapidement, facilitant les déplacements vers Rennes et son centre-ville.

Les points forts
- Quartier très recherché de la Ricoquais
- Situation privilégiée en fond d'impasse
- Maison très lumineuse triple exposition Est, Sud et Ouest
- 218 m² habitables
- Grande suite parentale au rez-de-chaussée (chambre, dressing, salle de bain)
- Trois grandes chambres à l'étage + grand espace bureau (possible 5 chambre)
- Salle de bain et WC indépendant à l'étage
- Magnifique potentiel de pièce de vie d'environ 75 m²
- Garage double
- Maison habitable immédiatement
- Fort potentiel de rénovation et de valorisation
- Proximité immédiate des écoles et des transports

Un bien rare sur le secteur de Saint-Grégoire, offrant un cadre de vie privilégié aux portes de Rennes.
Pour visiter prenez rendez-vous avec un conseiller :

Century21 Dreano Immobilier (Agence de Rennes)
Laurent BEAUDOUIN
1 Bd de la Tour d'Auvergne
35000 Rennes
Port : 0674670993
laurent.beaudouin@century21.fr
E.I. Laurent BEAUDOUIN - 492 723 705 Rennes

L'ameublement sur les photos a été généré par IA afin de faciliter les projections d'aménagement.

Features:

  • Rooms: 7
  • Reference Number: 202_3198_3967
  • Number of Fireplaces: 1
  • Fireplace Description: Wood burning
  • Number of assigned or reserved parking spaces: 2

Location:

35760 St Gregoire, Bretagne, France
Listed By CENTURY 21 Dréano Immobilier

The Residential For Sale, Townhouse located in 35760 St Gregoire, Bretagne, France is currently for sale. This property is listed for €649,950 EUR. This property has 4 bedrooms, 2 bathrooms and 218 m2. If this property isn't what you're looking for, search Bretagne Real Estate  to see other  Homes For Sale in St Gregoire.

Large Photo