Homes For Sale: Portugal Faro Silves Listing #C0205-06893
SWIPE FOR MORE IMAGES

€1,100,000 EUR

União das freguesias de Alcantarilha e Pêra
Silves, Faro 8365-306
Portugal
2,798.7 sqft :: 260 m2
4 bedrooms
3 baths
5 rooms
Residential For Sale, Single Family Home
Land size: 7,618 sqft :: 708 m2
Sale price per sqm: 5,029.88
CENTURY 21 Realty Art
Rua do Estádio, Quinta da Bela Vista, Lote A-12, Lojas A/B, 12, A, 8200-127, Albufeira
Albufeira, Faro,
Phone: +351 +351289583069

Yes, I would like more information from C21. Please use and/or share my information with a C21 Agent to contact me about my real estate needs.

By clicking Contact Office, I agree a C21 Agent may contact me by phone or text message including by automated means about real estate services, and that I can access real estate services without providing my phone number. I acknowledge that I have read and agree to the Terms of Use and Privacy Policy.

Remarks: [Translate *]

Descubra uma moradia exclusiva onde a arquitetura moderna, o conforto absoluto e a eficiência energética se unem para criar um estilo de vida superior no litoral algarvio. Concebida segundo os princípios das Casas Passivas, este imóvel oferece temperaturas estáveis ao longo de todo o ano, ar mais puro e custos de energia significativamente reduzidos — uma combinação perfeita entre bem-estar, sustentabilidade e valorização.
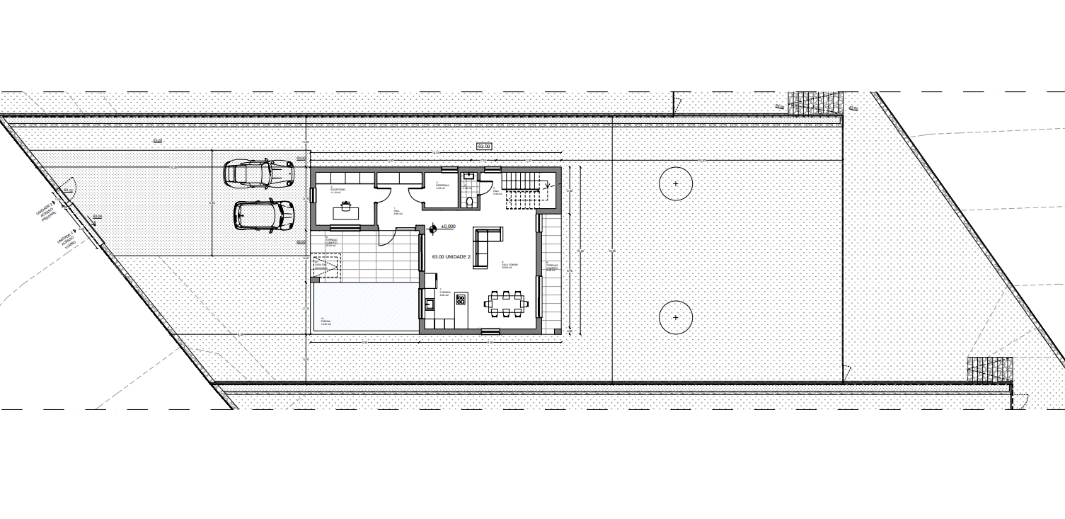
Num lote de 708 m², a moradia garante privacidade total e um exterior pensado para aproveitar ao máximo o clima algarvio, com piscina, jardim paisagístico e área de barbecue. No interior, as áreas destacam-se pela luminosidade, pelos acabamentos de elevada qualidade e pela fluidez dos espaços, incluindo quatro quartos, um deles ideal para escritório.

Localizada numa zona tranquila com vista mar e a poucos minutos da praia e da escola internacional Nobel Algarve British International School e de todos os serviços essenciais, esta moradia oferece o equilíbrio ideal entre tranquilidade e qualidade de vida.
Em destaque:
* Construção passiva para máximo conforto e baixo consumo
* 260m² de arquitetura contemporânea com acabamentos premium
* Lote privado de 708 m² com piscina e jardim
* Vista mar e proximidade da praia, escola internacional e serviços
* Tecnologia avançada: piso radiante, painéis solares 11 kWh, portas em vidro triplo bombas de calor e isolamento de topo.
Esta não é apenas uma casa. É uma forma de viver — com mais privacidade, mais eficiência, mais qualidade e mais valor.
EN:
Discover an exclusive villa where modern architecture, absolute comfort and outstanding energy efficiency come together to create a superior lifestyle on the Algarve coast. Designed according to passive house principles, this residence offers stable temperatures throughout the year, cleaner air and significantly reduced energy costs — a perfect balance of well-being, sustainability and long-term value.
Set on a 708 m² private plot, the villa guarantees complete privacy and an outdoor area designed to make the most of the Algarve climate, featuring a swimming pool, landscaped garden and barbecue area. Inside, the 260 m² stand out for their brightness, premium finishes and harmonious flow between spaces, including four bedrooms, one of which is ideally suited for a home office.
Located in a peaceful area with sea views and just minutes from the beach, the Nobel Algarve British International School and all essential amenities, this villa offers the ideal balance between tranquillity, convenience and exceptional quality of life.
Highlights:
Passive house construction for maximum comfort and low energy consumption
260 m² of contemporary architecture with premium finishes.
Private 708 m² plot with pool and landscaped garden
Sea views and close proximity to the beach, international school and local services.
Advanced technology: underfloor heating, 11 kWh solar panels, triple-glazed glass doors, heat pumps and superior insulation.
This is more than just a house — it is a way of living, with greater privacy, greater efficiency, greater quality and greater value.

Features:

  • Year Built: 2026
  • Location: Subdivision: União das freguesias de Alcantarilha e Pêra
  • Number of assigned or reserved parking spaces: 2

Location:

União das freguesias de Alcantarilha e Pêra, Silves, Faro 8365-306, Portugal
Listed By CENTURY 21 Realty Art

The Residential For Sale, Single Family Home located in União das freguesias de Alcantarilha e Pêra, Silves, Faro 8365-306, Portugal is currently for sale. This property is listed for €1,100,000 EUR. This property has 4 bedrooms, 3 bathrooms and 260 m2. If this property isn't what you're looking for, search Faro Real Estate  to see other  Homes For Sale in Silves.

Large Photo