SWIPE FOR MORE IMAGES
$25,000 USD
Ruta 16
Presidente Perón, Horizontes al Sur, GBA Sur 1805
Argentina
Presidente Perón, Horizontes al Sur, GBA Sur 1805
Argentina
6,997 sqft ::
650 m2
Land for sale, Ranch
Sale price per sqm: 38.46
Remarks: [Translate *]
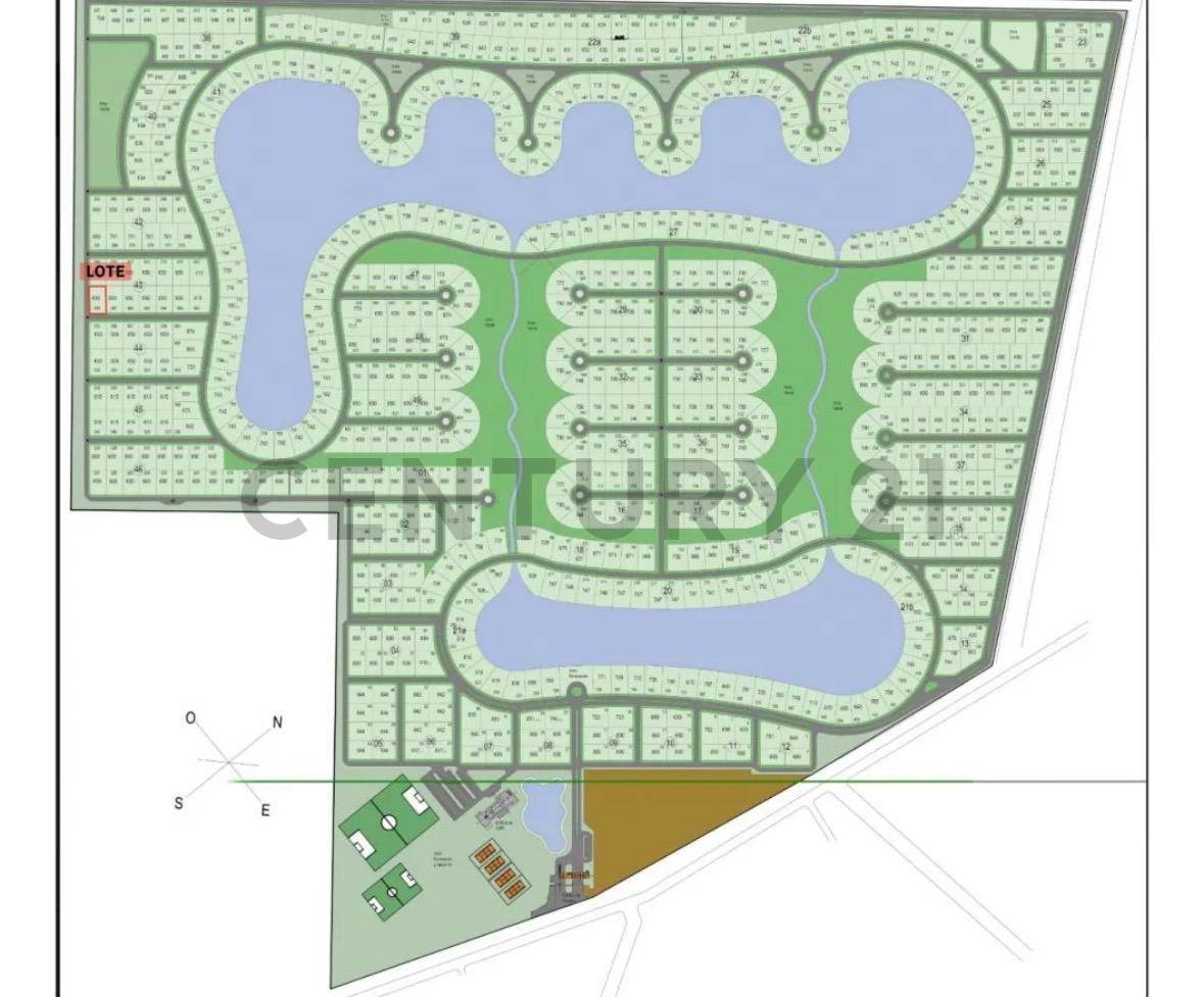
Lote en venta en Horizontes al Sur
Se ofrece a la venta un lote interno de 650 m² ubicado dentro del barrio Horizontes al Sur, un desarrollo situado sobre Ruta 16, a aproximadamente 45 minutos del Obelisco, con acceso directo por autopista.
El barrio está compuesto por 753 lotes y cuenta con una propuesta pensada para disfrutar de la naturaleza y las actividades al aire libre. Posee dos lagunas aptas para deportes náuticos sin motor y pesca deportiva, además de Club House con SUM, restaurante, banos y vestuarios, junto con canchas de tenis y fútbol.
Todos los servicios se encuentran distribuidos mediante tendido subterráneo: agua, cloacas, electricidad y gas.
El lote cuenta con planos aprobados, lo que facilita comenzar a proyectar o construir.
Forma de pago: la propietaria acepta USD 12.500 en efectivo y el saldo financiado en 12 cuotas.
Posesión inmediata. Sabrina Eva Portela Matrícula CUCICBA 8933 / CMCPM 3000
Todas las propiedades que figuran en esta publicación se encuentran a cargo del profesional matriculado Sabrina Eva Portela, Matrícula CUCICBA 8933 / CMCPM 3000 por lo tanto la intermediación y la conclusión de las operaciones serán llevadas exclusivamente por él. En cumplimiento de la Ley 10.973 de la Provincia de Buenos Aires, Ley Nacional 25.028, Ley Nacional 20.266, Ley 22.802 de Lealtad Comercial, Ley 24.240 de Defensa al Consumidor, las normas del Código Civil y Comercial de la Nación y Constitucionales, los asesores o agentes NO ejercen el corretaje inmobiliario. Todas las operaciones inmobiliarias son objeto de intermediación y conclusión por parte del martillero y corredor colegiado, cuyos datos se exhiben en el nombre de la inmobiliaria.
Ley 5115: EXCEPTO que en la descripción de la propiedad se indique lo contrario, el edificio puede no contar con rampa para personas con movilidad reducida, y no ser Accesible para personas con discapacidades físicas.
Venta sujeta a la obtención del COTI por parte del propietario. Las medidas son aproximadas, las reales surgen del título o plano de mensura.
Las reservas se toman exclusivamente en la inmobiliaria con el matriculado CUCICBA 8933 / CMCPM 3000 (ref:322664)
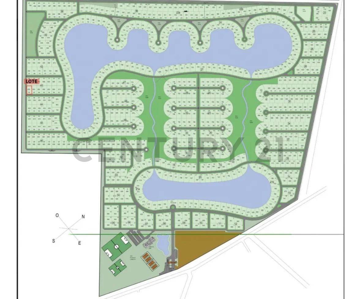
Se ofrece a la venta un lote interno de 650 m² ubicado dentro del barrio Horizontes al Sur, un desarrollo situado sobre Ruta 16, a aproximadamente 45 minutos del Obelisco, con acceso directo por autopista.
El barrio está compuesto por 753 lotes y cuenta con una propuesta pensada para disfrutar de la naturaleza y las actividades al aire libre. Posee dos lagunas aptas para deportes náuticos sin motor y pesca deportiva, además de Club House con SUM, restaurante, banos y vestuarios, junto con canchas de tenis y fútbol.
Todos los servicios se encuentran distribuidos mediante tendido subterráneo: agua, cloacas, electricidad y gas.
El lote cuenta con planos aprobados, lo que facilita comenzar a proyectar o construir.
Forma de pago: la propietaria acepta USD 12.500 en efectivo y el saldo financiado en 12 cuotas.
Posesión inmediata. Sabrina Eva Portela Matrícula CUCICBA 8933 / CMCPM 3000
Todas las propiedades que figuran en esta publicación se encuentran a cargo del profesional matriculado Sabrina Eva Portela, Matrícula CUCICBA 8933 / CMCPM 3000 por lo tanto la intermediación y la conclusión de las operaciones serán llevadas exclusivamente por él. En cumplimiento de la Ley 10.973 de la Provincia de Buenos Aires, Ley Nacional 25.028, Ley Nacional 20.266, Ley 22.802 de Lealtad Comercial, Ley 24.240 de Defensa al Consumidor, las normas del Código Civil y Comercial de la Nación y Constitucionales, los asesores o agentes NO ejercen el corretaje inmobiliario. Todas las operaciones inmobiliarias son objeto de intermediación y conclusión por parte del martillero y corredor colegiado, cuyos datos se exhiben en el nombre de la inmobiliaria.
Ley 5115: EXCEPTO que en la descripción de la propiedad se indique lo contrario, el edificio puede no contar con rampa para personas con movilidad reducida, y no ser Accesible para personas con discapacidades físicas.
Venta sujeta a la obtención del COTI por parte del propietario. Las medidas son aproximadas, las reales surgen del título o plano de mensura.
Las reservas se toman exclusivamente en la inmobiliaria con el matriculado CUCICBA 8933 / CMCPM 3000 (ref:322664)
Features:
- Recreational Features: Gym
Location:
Ruta 16 , Presidente Perón, Horizontes al Sur, GBA Sur 1805, Argentina
Listed By CENTURY 21 Portela Sabrina
The Land for sale, Ranch located at Ruta 16 , Presidente Perón, Horizontes al Sur, GBA Sur 1805, Argentina is currently for sale. Ruta 16 , Presidente Perón, Horizontes al Sur, GBA Sur 1805, Argentina is listed for $25,000 USD. If the property located at Ruta 16 , Presidente Perón, Horizontes al Sur, GBA Sur 1805, Argentina isn't what you're looking for, search GBA Sur Real Estate to see other Land For Sale in Presidente Perón.












