SWIPE FOR MORE IMAGES
€66,000 EUR
44660 Rouge, Pays de la Loire
France
France
1,216.4 sqft ::
113 m2
3 bedrooms
Residential For Sale, Townhouse
Sale price per sqm: 677.4
Remarks: [Translate *]
À saisir rapidement sur la commune de Rougé (44660).
Idéalement située au cœur du bourg, à deux pas des commodités, venez découvrir cette propriété au potentiel rare sur le marché.
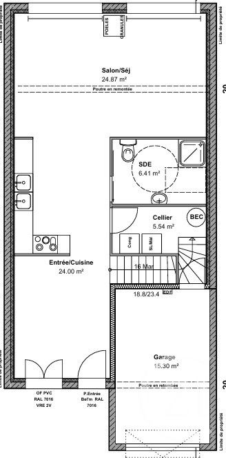
Ce bien offre une surface habitable projetée de 113 m², complétée par un garage de 17m² et un agréable jardin (un atout précieux en centre-ville).
État d'avancement du projet : La maçonnerie a été entièrement réalisée, offrant une base saine et solide. Attention : Le bien est vendu en l'état, il n'est pas hors d'eau hors d'air. Il reste à prévoir la toiture, les menuiseries et l'aménagement intérieur intégral.
C'est une opportunité idéale pour un artisan, un investisseur ou un bricoleur averti souhaitant créer un logement sur-mesure avec de beaux volumes et un extérieur.
Prix de vente : 66 000 € FAI (Frais d'Agence Inclus). Non soumis au DPE.
Idéalement située au cœur du bourg, à deux pas des commodités, venez découvrir cette propriété au potentiel rare sur le marché.
Ce bien offre une surface habitable projetée de 113 m², complétée par un garage de 17m² et un agréable jardin (un atout précieux en centre-ville).
État d'avancement du projet : La maçonnerie a été entièrement réalisée, offrant une base saine et solide. Attention : Le bien est vendu en l'état, il n'est pas hors d'eau hors d'air. Il reste à prévoir la toiture, les menuiseries et l'aménagement intérieur intégral.
C'est une opportunité idéale pour un artisan, un investisseur ou un bricoleur averti souhaitant créer un logement sur-mesure avec de beaux volumes et un extérieur.
Prix de vente : 66 000 € FAI (Frais d'Agence Inclus). Non soumis au DPE.
Features:
- Rooms: 4
- Reference Number: 202_3751_772
- Number of assigned or reserved parking spaces: 0
Location:
44660 Rouge, Pays de la Loire, France
Listed By CENTURY 21 Iméo
The Residential For Sale, Townhouse located in 44660 Rouge, Pays de la Loire, France is currently for sale. This property is listed for €66,000 EUR. This property has 3 bedrooms and 113 m2. If this property isn't what you're looking for, search Pays de la Loire Real Estate to see other Homes For Sale in Rouge.





