SWIPE FOR MORE IMAGES
$4,890,000 MXN
PARQUE CUERNAVACA, LOMAS DE ANGELÓPOLIS ,
Ocoyucan, Santa Clara Ocoyucan, Puebla 72850
Mexico
Ocoyucan, Santa Clara Ocoyucan, Puebla 72850
Mexico
2,922.5 sqft ::
271.5 m2
4 bedrooms
5 full baths, 2 half baths
Residential For Sale, Single Family Home
Land size: 1,530 sqft ::
142 m2
Sale price per sqm: 1,048.87
Remarks: [Translate *]
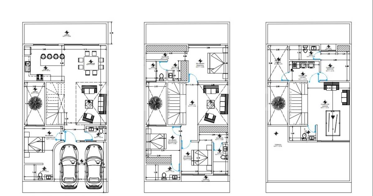
CASA EN PRE VENTA – PARQUE CUERNAVACA
- Parque Cuernavaca, Lomas de Angelópolis, Puebla
- Proyecto Residencial de 271 m²
INFORMACIÓN GENERAL
-Construcción: 271 m²
-Niveles: 2
-Distribución inteligente con doble altura en sala
DISTRIBUCIÓN
- Planta Baja
•Recámara con excelente iluminación
•Sala con espectacular doble altura
•Comedor
•Cocina
•Salón de usos múltiples
•Medio bano
•Cuarto de servicio
•Área de tendido
- Planta Alta
•3 recámaras
•Recámara principal con vestidor y bano completo
•Recámaras secundarias amplias
Hermoso proyecto residencial en Parque Cuernavaca, dentro de Lomas de Angelópolis, una de las zonas con mayor crecimiento y plusvalía en Puebla.
La propiedad destaca por su diseno contemporáneo y funcional, integrando una recámara en planta baja ideal para visitas o adultos mayores, además de tres recámaras en planta alta, incluyendo una amplia recámara principal con vestidor y bano.
La doble altura en sala brinda amplitud, elegancia y una excelente entrada de luz natural, convirtiéndola en el corazón del hogar.
Además, cuenta con salón de usos múltiples, cuarto de servicio y área de tendido, ofreciendo comodidad y practicidad para la vida diaria.
AMENIDADES DEL PARQUE CUERNAVACA
El clúster ofrece:
• Gimnasio
• Casa Club
• Seguridad privada
Excelente ubicación, ya que se encuentra muy cerca de la zona Cascatta, uno de los puntos de mayor desarrollo y conectividad dentro de Lomas de Angelópolis.
- Agenda tu cita y conoce más de este increíble proyecto.
NOTA: Modelo de contrato de adhesión para intermediación con número de registro ante Procuraduría Federal del Consumidor (PROFECO): 4996-2024. ROSA ANEL MARTÍNEZ HERRERA CEL.222 464 9486 (ref:608284)
- Parque Cuernavaca, Lomas de Angelópolis, Puebla
- Proyecto Residencial de 271 m²
INFORMACIÓN GENERAL
-Construcción: 271 m²
-Niveles: 2
-Distribución inteligente con doble altura en sala
DISTRIBUCIÓN
- Planta Baja
•Recámara con excelente iluminación
•Sala con espectacular doble altura
•Comedor
•Cocina
•Salón de usos múltiples
•Medio bano
•Cuarto de servicio
•Área de tendido
- Planta Alta
•3 recámaras
•Recámara principal con vestidor y bano completo
•Recámaras secundarias amplias
Hermoso proyecto residencial en Parque Cuernavaca, dentro de Lomas de Angelópolis, una de las zonas con mayor crecimiento y plusvalía en Puebla.
La propiedad destaca por su diseno contemporáneo y funcional, integrando una recámara en planta baja ideal para visitas o adultos mayores, además de tres recámaras en planta alta, incluyendo una amplia recámara principal con vestidor y bano.
La doble altura en sala brinda amplitud, elegancia y una excelente entrada de luz natural, convirtiéndola en el corazón del hogar.
Además, cuenta con salón de usos múltiples, cuarto de servicio y área de tendido, ofreciendo comodidad y practicidad para la vida diaria.
AMENIDADES DEL PARQUE CUERNAVACA
El clúster ofrece:
• Gimnasio
• Casa Club
• Seguridad privada
Excelente ubicación, ya que se encuentra muy cerca de la zona Cascatta, uno de los puntos de mayor desarrollo y conectividad dentro de Lomas de Angelópolis.
- Agenda tu cita y conoce más de este increíble proyecto.
NOTA: Modelo de contrato de adhesión para intermediación con número de registro ante Procuraduría Federal del Consumidor (PROFECO): 4996-2024. ROSA ANEL MARTÍNEZ HERRERA CEL.222 464 9486 (ref:608284)
Features:
- Dining Room
- Breakfast Room
- Game Room
- Maids Room/ Quarters
- Breakfast Room
- Dining Room
- Game Room
- Maids Room/ Quarters
- Year Built: 2026
- Number of Levels: 3
- Location: Close to A Park
- Construction: New Construction
- Condition: New
- Recreational Features: Gym
- Property Features: Terrace, Balcony
- Outdoor Space Description: Balcony, Terrace
- Utilities: Water, Sewer, Bottled Gas, Electric
- Number of parking spaces: 2
Location:
PARQUE CUERNAVACA, LOMAS DE ANGELÓPOLIS ,, Ocoyucan, Santa Clara Ocoyucan, Puebla 72850, Mexico
Listed By CENTURY 21 Home Studio
The Residential For Sale, Single Family Home located at PARQUE CUERNAVACA, LOMAS DE ANGELÓPOLIS ,, Ocoyucan, Santa Clara Ocoyucan, Puebla 72850, Mexico is currently for sale. PARQUE CUERNAVACA, LOMAS DE ANGELÓPOLIS ,, Ocoyucan, Santa Clara Ocoyucan, Puebla 72850, Mexico is listed for $4,890,000 MXN. This property has 4 bedrooms, 5 full baths, 2 half baths and 271.5 m2. If the property located at PARQUE CUERNAVACA, LOMAS DE ANGELÓPOLIS ,, Ocoyucan, Santa Clara Ocoyucan, Puebla 72850, Mexico isn't what you're looking for, search Puebla Real Estate to see other Homes For Sale in Ocoyucan.



