SWIPE FOR MORE IMAGES
€1,500,000 EUR
Moita
Moita, Setubal 2860-595
Portugal
Moita, Setubal 2860-595
Portugal
53,820 sqft ::
5,000 m2
Land for sale
Property Size: 53,821.3 sqft ::
5,000 m2
Sale price per sqm: 346.28
Remarks: [Translate *]
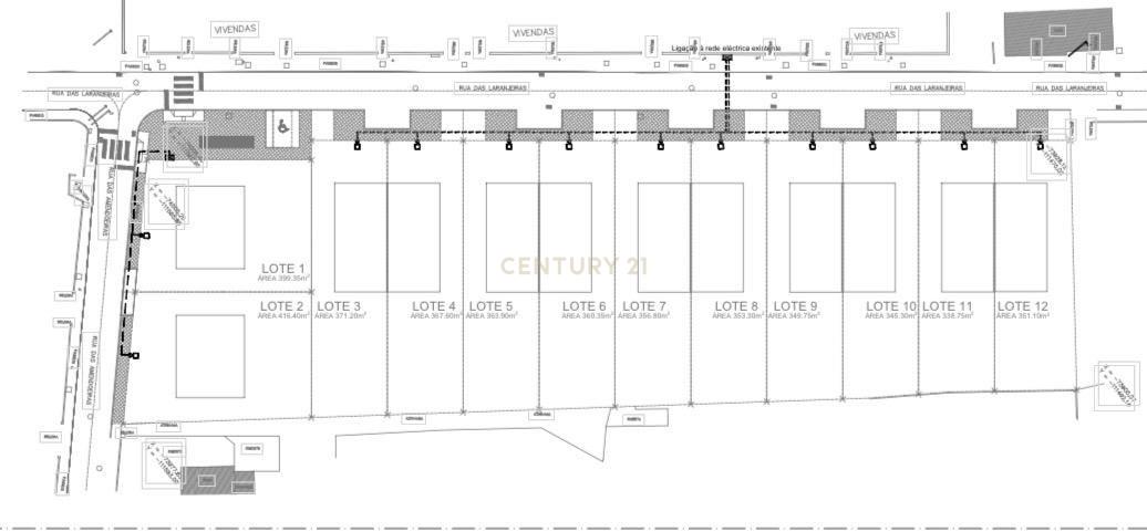
Apresenta-se excelente terreno rústico com elevado potencial construtivo, ideal para projeto habitacional ( com PIP aprovado).
Com área ampla e características favoráveis, o terreno permite a construção de até 12 moradias, tornando-se uma oportunidade única para investidores e promotores imobiliários. Localizado em zona tranquila e de fácil acesso, o terreno de 5000 m2, beneficia de boa exposição solar e envolvente harmoniosa, proporcionando um ambiente ideal para desenvolvimento residencial. A área envolvente conta com infraestruturas essenciais nas proximidades, como acessos rodoviários, comércio e serviços, valorizando ainda mais o projeto.
Com topografia favorável e excelente potencial de valorização, este terreno reúne as condições ideais para a criação de um empreendimento moderno e atrativo.
Excelente oportunidade de investimento, com forte potencial de rentabilidade.
Para mais informações, entre em contacto.
Com área ampla e características favoráveis, o terreno permite a construção de até 12 moradias, tornando-se uma oportunidade única para investidores e promotores imobiliários. Localizado em zona tranquila e de fácil acesso, o terreno de 5000 m2, beneficia de boa exposição solar e envolvente harmoniosa, proporcionando um ambiente ideal para desenvolvimento residencial. A área envolvente conta com infraestruturas essenciais nas proximidades, como acessos rodoviários, comércio e serviços, valorizando ainda mais o projeto.
Com topografia favorável e excelente potencial de valorização, este terreno reúne as condições ideais para a criação de um empreendimento moderno e atrativo.
Excelente oportunidade de investimento, com forte potencial de rentabilidade.
Para mais informações, entre em contacto.
Features:
- Location: Subdivision: Moita
Location:
Moita, Moita, Setubal 2860-595, Portugal
Listed By CENTURY 21 Nações
The Land for sale located in Moita, Moita, Setubal 2860-595, Portugal is currently for sale. This property is listed for €1,500,000 EUR. This property has 5,000 m2. If this property isn't what you're looking for, search Setúbal Real Estate to see other Land For Sale in Moita.




