SWIPE FOR MORE IMAGES
€250,000 EUR
92190 Meudon, Île-de-France
France
France
537.8 sqft ::
49.96 m2
2 bedrooms
Residential For Sale, Apartment
Sale price per sqm: 5,956.37
Remarks: [Translate *]
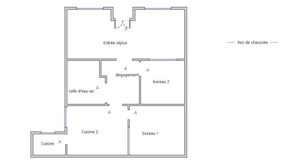
Meudon - 3 pièces en rez-de-chaussée
L'Agence Century 21 a le plaisir de vous présenter cet appartement de 49.96 m².
Situé dans une petite rue à sens unique, vous serez immédiatement séduits par son potentiel d'aménagement.
Il se compose d'une pièce principale de 17 m², d'une cuisine, de deux salles d'eau et de deux pièces de 7 et 8 m².
Fort potentiel, restauration complète à prévoir.
Côté commodités : 6 minutes à pied de la Gare de Meudon (train lligne N), 15 minutes à pied du tram (T2 arrêt Meudon-sur-Seine). Bus 289 et 169 vers Paris XV à 3 minutes à pied.
Une opportunité rare sur le marché, faites vite !
Un espace avec entrée indépendante de 31,3 m² est disponible en sus.
N'hésitez pas à nous contacter pour réserver un créneau.
L'Agence Century 21 a le plaisir de vous présenter cet appartement de 49.96 m².
Situé dans une petite rue à sens unique, vous serez immédiatement séduits par son potentiel d'aménagement.
Il se compose d'une pièce principale de 17 m², d'une cuisine, de deux salles d'eau et de deux pièces de 7 et 8 m².
Fort potentiel, restauration complète à prévoir.
Côté commodités : 6 minutes à pied de la Gare de Meudon (train lligne N), 15 minutes à pied du tram (T2 arrêt Meudon-sur-Seine). Bus 289 et 169 vers Paris XV à 3 minutes à pied.
Une opportunité rare sur le marché, faites vite !
Un espace avec entrée indépendante de 31,3 m² est disponible en sus.
N'hésitez pas à nous contacter pour réserver un créneau.
Features:
- Rooms: 3
- Reference Number: 202_2421_12795
- Apartment is on level: 0
- Number of Levels: 1
- Number of assigned or reserved parking spaces: 0
Location:
92190 Meudon, Île-de-France, France
Listed By CENTURY 21 Agence Jaurès
The Residential For Sale, Apartment located in 92190 Meudon, Île-de-France, France is currently for sale. This property is listed for €250,000 EUR. This property has 2 bedrooms and 49.96 m2. If this property isn't what you're looking for, search Île-de-France Real Estate to see other Homes For Sale in Meudon.











