SWIPE FOR MORE IMAGES
€447,000 EUR
Alcântara
Lisbon, Lisbon 1300-064
Portugal
Lisbon, Lisbon 1300-064
Portugal
1,453.2 sqft ::
135 m2
2 bedrooms
3 baths
4 rooms
Residential For Sale, Apartment
Sale price per sqm: 3,831.45
Remarks: [Translate *]
Descubra este fantástico R/C duplex situado em Alcântara, numa localização privilegiada junto ao agradável Jardim Avelar Brotero, ideal para quem procura viver numa zona central, tranquila e com forte potencial de valorização.
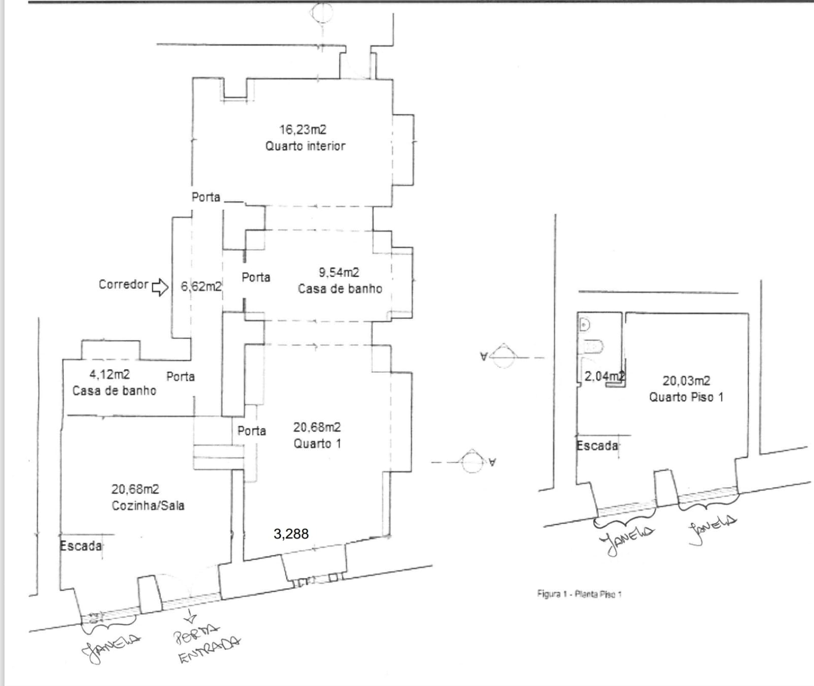
No piso de entrada encontra uma cozinha em conceito aberto, integrada com a sala, criando um espaço moderno e funcional. Dispõe de um quarto interior de áreas generosas e de um segundo quarto amplo com janela. Neste piso existe ainda uma casa de banho completa e uma casa de banho social. A disposição prática garante conforto no dia-a-dia e uma clara separação entre zona social e zona privada.
No andar de cima encontra uma casa de banho completa e uma sala com excelente luminosidade natural, com potencial para ser transformada numa confortável suite. Com esta possibilidade de conversão, o imóvel poderá passar a contar com três casas de banho completas e uma distribuição ainda mais valorizada.
Inserido numa zona com comércio local, serviços, escolas e bons acessos, este apartamento combina o charme característico de Alcântara com a funcionalidade de um duplex versátil e adaptável às suas necessidades.
Uma excelente oportunidade para habitação própria ou investimento. Agende já a sua visita e venha conhecer o potencial deste imóvel.
Somos especialistas em crédito habitação acreditados pelo Banco de Portugal. Procuramos as melhores condições com rapidez e eficácia e tratamos de todo o processo por si, até à data da escritura.
Venha visitar e permita-se a beneficiar deste imóvel, podendo ser uma excelente escolha para si.
Informação não vinculativa, sujeita a confirmação junto da mediadora.
No piso de entrada encontra uma cozinha em conceito aberto, integrada com a sala, criando um espaço moderno e funcional. Dispõe de um quarto interior de áreas generosas e de um segundo quarto amplo com janela. Neste piso existe ainda uma casa de banho completa e uma casa de banho social. A disposição prática garante conforto no dia-a-dia e uma clara separação entre zona social e zona privada.
No andar de cima encontra uma casa de banho completa e uma sala com excelente luminosidade natural, com potencial para ser transformada numa confortável suite. Com esta possibilidade de conversão, o imóvel poderá passar a contar com três casas de banho completas e uma distribuição ainda mais valorizada.
Inserido numa zona com comércio local, serviços, escolas e bons acessos, este apartamento combina o charme característico de Alcântara com a funcionalidade de um duplex versátil e adaptável às suas necessidades.
Uma excelente oportunidade para habitação própria ou investimento. Agende já a sua visita e venha conhecer o potencial deste imóvel.
Somos especialistas em crédito habitação acreditados pelo Banco de Portugal. Procuramos as melhores condições com rapidez e eficácia e tratamos de todo o processo por si, até à data da escritura.
Venha visitar e permita-se a beneficiar deste imóvel, podendo ser uma excelente escolha para si.
Informação não vinculativa, sujeita a confirmação junto da mediadora.
Features:
- Year Built: 1937
- Location: Subdivision: Alcântara
Location:
Alcântara, Lisbon, Lisbon 1300-064, Portugal
Listed By CENTURY 21 Le Quartier
The Residential For Sale, Apartment located in Alcântara, Lisbon, Lisbon 1300-064, Portugal is currently for sale. This property is listed for €447,000 EUR. This property has 2 bedrooms, 3 bathrooms and 135 m2. If this property isn't what you're looking for, search Lisbon Real Estate to see other Homes For Sale in Lisbon.






















