Residential For Rent: Portugal Faro Lagoa Listing #C0240-03499
SWIPE FOR MORE IMAGES

€725 EUR

União das freguesias de Lagoa e Carvoeiro
Lagoa, Faro 8400-417
Portugal
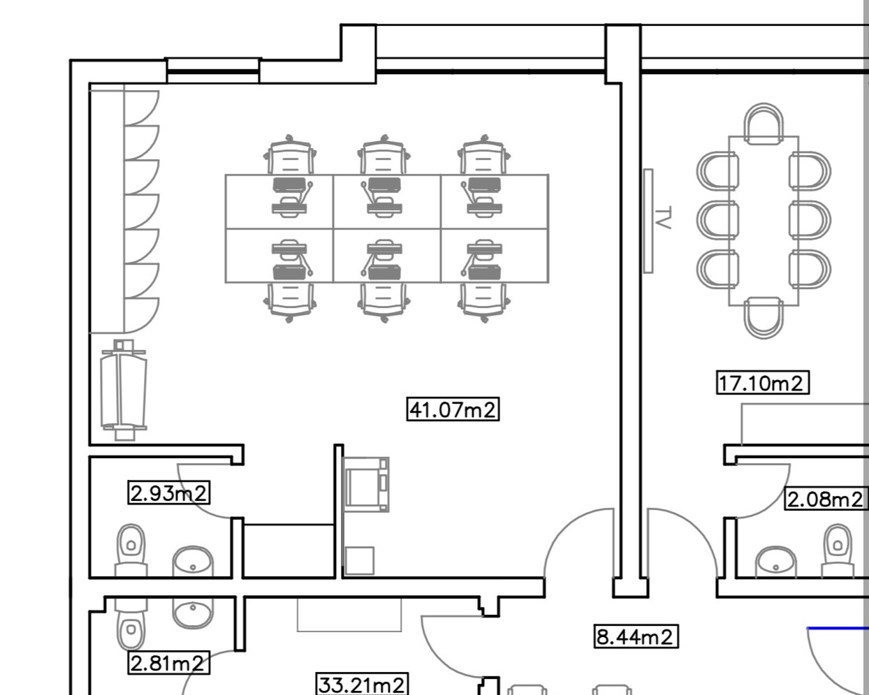
406.9 sqft :: 37.8 m2
1 bath
1 room
Residential For Rent
Sale price per sqm: 22.14
CENTURY 21 Realty Art II
Rua do Oceano Atlântico, Lote 10 Loja 5, 8500-823, Portimão
Portimão, Faro,
Phone: +351 +351282492793

Yes, I would like more information from C21. Please use and/or share my information with a C21 Agent to contact me about my real estate needs.

By clicking Contact Office, I agree a C21 Agent may contact me by phone or text message including by automated means about real estate services, and that I can access real estate services without providing my phone number. I acknowledge that I have read and agree to the Terms of Use and Privacy Policy.

Remarks: [Translate *]

À procura de um espaço para dar vida ao seu negócio?
Apresento um escritório disponível para arrendamento, com tudo o que precisa para trabalhar com conforto e profissionalismo, bem no centro de Lagoa, Algarve.
Porquê escolher este escritório?
Edifício exclusivo para serviços, com ambiente profissional.
Hall de entrada acolhedor no piso dos escritórios para receber clientes.
Dois elevadores que garantem acesso fácil e rápido.
Espaço amplo e luminoso, virado a sul, com casa de banho privativa.
Ar condicionado instalado para maior conforto durante todo o ano.
Localização privilegiada, perto do Serviço de Finanças, Segurança Social e outros serviços essenciais.
Estacionamento fácil nas imediações.
Este escritório foi pensado para quem procura praticidade e um ambiente de trabalho moderno.
Não perca a oportunidade de crescer num espaço que valoriza o seu negócio.
Contacte me para mais informações ou para agendar a sua visita.

Features:

  • Year Built: 2013
  • Location: Subdivision: União das freguesias de Lagoa e Carvoeiro

Location:

União das freguesias de Lagoa e Carvoeiro, Lagoa, Faro 8400-417, Portugal
Listed By CENTURY 21 Realty Art II

The Residential For Rent located in União das freguesias de Lagoa e Carvoeiro, Lagoa, Faro 8400-417, Portugal is currently for rent.This property is listed for €725 EUR. This property has 1 room, 1 bathroom and 37.8 m2. If this property isn't what you're looking for, search Faro Real Estate  to see other  Homes For Lease in Lagoa.

Large Photo