SWIPE FOR MORE IMAGES
€290,000 EUR
Alcabideche
Cascais, Lisbon 2645-505
Portugal
Cascais, Lisbon 2645-505
Portugal
3,391 sqft ::
315 m2
Land for sale
Property Size: 3,390.7 sqft ::
315 m2
Sale price per sqm: 1,087.73
Remarks: [Translate *]
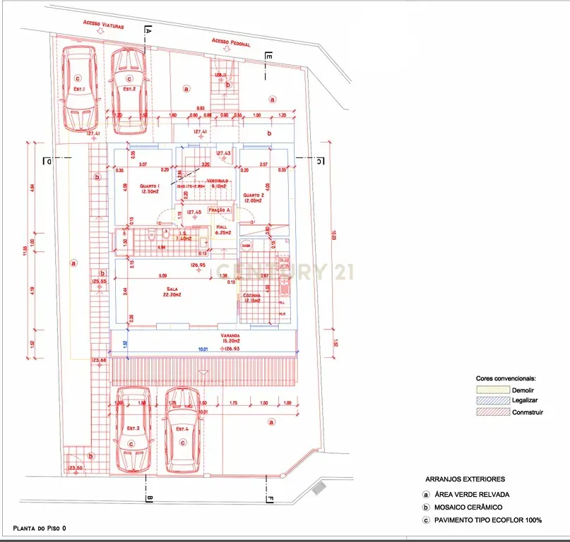
Terreno com Projeto Aprovado para Reconstrução de Moradia T4 (uni ou bi familiar) - tem ruína no local.
Nota: primeira fotografia é meramente ilustrativa.
Situado numa das zonas mais tranquilas e centrais da linha de Cascais — Adroana, Alcabideche. Uma zona de moradias em grande crescimento. Não perca esta oportunidade!
📐 Área do terreno: 315m²
✅ Projeto aprovado pela Câmara Municipal de Cascais em janeiro de 2025 – pronto a iniciar obra de imediato com pagamento da taxa de 3594,56€
🛠️ Projeto Flexível e com Potencial:
- Pode construir uma moradia unifamiliar ou bifamiliar, consoante as suas necessidades (o PDM permite).
- A casa pode possuir duas entradas independentes em duas ruas opostas – ideal para divisão em dois apartamentos ou uso misto (habitação e investimento).
- Existe ainda a possibilidade de construir um piso inferior com garagem para 2 a 3 carros ou área de arrumos.
- O terreno possui uma casa em ruína, e o projecto está feito para demolição + reconstrução. ( O valor de construção fica a cargo do comprador.)
🌿 Localização Perfeita:
- Situada no final de duas ruas sem saída – tranquilidade garantida.
- Vista sobre o Estoril e o mar.
🚗 Acessos rápidos:
- 1 min do Cascais Shopping
- 2 min da A5, A16 e IC19
- 5 min do centro de Cascais e Estoril
- 10 min de Sintra
Próximo de Manique, Salesianos de Manique (a morada permite inscrição neste colégio), aeródromo de Tires e Marginal
📞 Entre em contacto para agendar a sua visita
Estou disponível para esclarecer todas as dúvidas e partilhar a documentação completa do projeto aprovado pela CMC.
Nota: primeira fotografia é meramente ilustrativa.
Situado numa das zonas mais tranquilas e centrais da linha de Cascais — Adroana, Alcabideche. Uma zona de moradias em grande crescimento. Não perca esta oportunidade!
📐 Área do terreno: 315m²
✅ Projeto aprovado pela Câmara Municipal de Cascais em janeiro de 2025 – pronto a iniciar obra de imediato com pagamento da taxa de 3594,56€
🛠️ Projeto Flexível e com Potencial:
- Pode construir uma moradia unifamiliar ou bifamiliar, consoante as suas necessidades (o PDM permite).
- A casa pode possuir duas entradas independentes em duas ruas opostas – ideal para divisão em dois apartamentos ou uso misto (habitação e investimento).
- Existe ainda a possibilidade de construir um piso inferior com garagem para 2 a 3 carros ou área de arrumos.
- O terreno possui uma casa em ruína, e o projecto está feito para demolição + reconstrução. ( O valor de construção fica a cargo do comprador.)
🌿 Localização Perfeita:
- Situada no final de duas ruas sem saída – tranquilidade garantida.
- Vista sobre o Estoril e o mar.
🚗 Acessos rápidos:
- 1 min do Cascais Shopping
- 2 min da A5, A16 e IC19
- 5 min do centro de Cascais e Estoril
- 10 min de Sintra
Próximo de Manique, Salesianos de Manique (a morada permite inscrição neste colégio), aeródromo de Tires e Marginal
📞 Entre em contacto para agendar a sua visita
Estou disponível para esclarecer todas as dúvidas e partilhar a documentação completa do projeto aprovado pela CMC.
Features:
- Year Built: 2026
- Location: Subdivision: Alcabideche
Location:
Alcabideche, Cascais, Lisbon 2645-505, Portugal
Listed By CENTURY 21 ByNunes
The Land for sale located in Alcabideche, Cascais, Lisbon 2645-505, Portugal is currently for sale. This property is listed for €290,000 EUR. This property has 315 m2. If this property isn't what you're looking for, search Lisbon Real Estate to see other Land For Sale in Cascais.




















.jpeg)






.jpeg)











