SWIPE FOR MORE IMAGES
€640,000 EUR
92100 Boulogne Billancourt, Île-de-France
France
France
882.7 sqft ::
82 m2
2 bedrooms
1 bath
Residential For Sale, Apartment
Sale price per sqm: 9,262.83
Remarks: [Translate *]
Boulogne Centre - 4 pièces
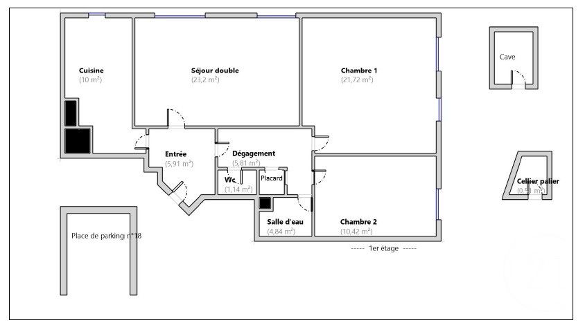
L'agence Century 21 Jaurès-Reine a le plaisir de vous présenter ce 4 pièces de 82 m² au premier étage d'une copropriété sécurisée et bien entretenue.
Il se compose comme suit : entrée avec rangements, cuisine, séjour double, dégagement avec rangements, wc, 2 chambres de 21 et 10 m², une salle d'eau avec wc.
Le mur entre la cuisine et le séjour n'est pas porteur, possibilité d'un espace total de 32m². Une troisième chambre est facilement aménageable.
Un cellier sur le palier et une cave complètent ce bien.
Local vélo en rez-de-chaussé.
Une place de parking en sous-sol est disponible en sus du prix.
L'avis du conseiller : localisation, nombreuses possibilités d'aménagement, cave, parking : faites vite !
L'agence Century 21 Jaurès-Reine a le plaisir de vous présenter ce 4 pièces de 82 m² au premier étage d'une copropriété sécurisée et bien entretenue.
Il se compose comme suit : entrée avec rangements, cuisine, séjour double, dégagement avec rangements, wc, 2 chambres de 21 et 10 m², une salle d'eau avec wc.
Le mur entre la cuisine et le séjour n'est pas porteur, possibilité d'un espace total de 32m². Une troisième chambre est facilement aménageable.
Un cellier sur le palier et une cave complètent ce bien.
Local vélo en rez-de-chaussé.
Une place de parking en sous-sol est disponible en sus du prix.
L'avis du conseiller : localisation, nombreuses possibilités d'aménagement, cave, parking : faites vite !
Features:
- Rooms: 4
- Reference Number: 202_2421_12966
- Year Built: 1963
- Apartment is on level: 1
- Number of Levels: 5
- Heating System: Central
- Association/Community Features Description: Elevators
- Number of assigned or reserved parking spaces: 1
- Parking type : Covered Parking, Golf Cart Space/Parking
Location:
92100 Boulogne Billancourt, Île-de-France, France
Listed By CENTURY 21 Agence Jaurès
The Residential For Sale, Apartment located in 92100 Boulogne Billancourt, Île-de-France, France is currently for sale. This property is listed for €640,000 EUR. This property has 2 bedrooms, 1 bathroom and 82 m2. If this property isn't what you're looking for, search Île-de-France Real Estate to see other Homes For Sale in Boulogne Billancourt.











