Homes For Sale: Portugal Lisbon Alenquer Listing #C0525-00134
SWIPE FOR MORE IMAGES

€249,000 EUR

União das freguesias de Alenquer (Santo Estêvão e Triana)
Alenquer, Lisbon 2580-355
Portugal
1,496.2 sqft :: 139 m2
3 bedrooms
2 baths
Residential For Sale, Apartment
Land size: 1,496 sqft :: 139 m2
Sale price per sqm: 2,145.5
CENTURY 21 NextLevel
Avenida Cidade de Alverca, 26 Loja 5, 2615-126, Alverca do Ribatejo
Vila Franca de Xira, Lisboa,
Phone: +351 +351211644543

Yes, I would like more information from C21. Please use and/or share my information with a C21 Agent to contact me about my real estate needs.

By clicking Contact Office, I agree a C21 Agent may contact me by phone or text message including by automated means about real estate services, and that I can access real estate services without providing my phone number. I acknowledge that I have read and agree to the Terms of Use and Privacy Policy.

Remarks: [Translate *]

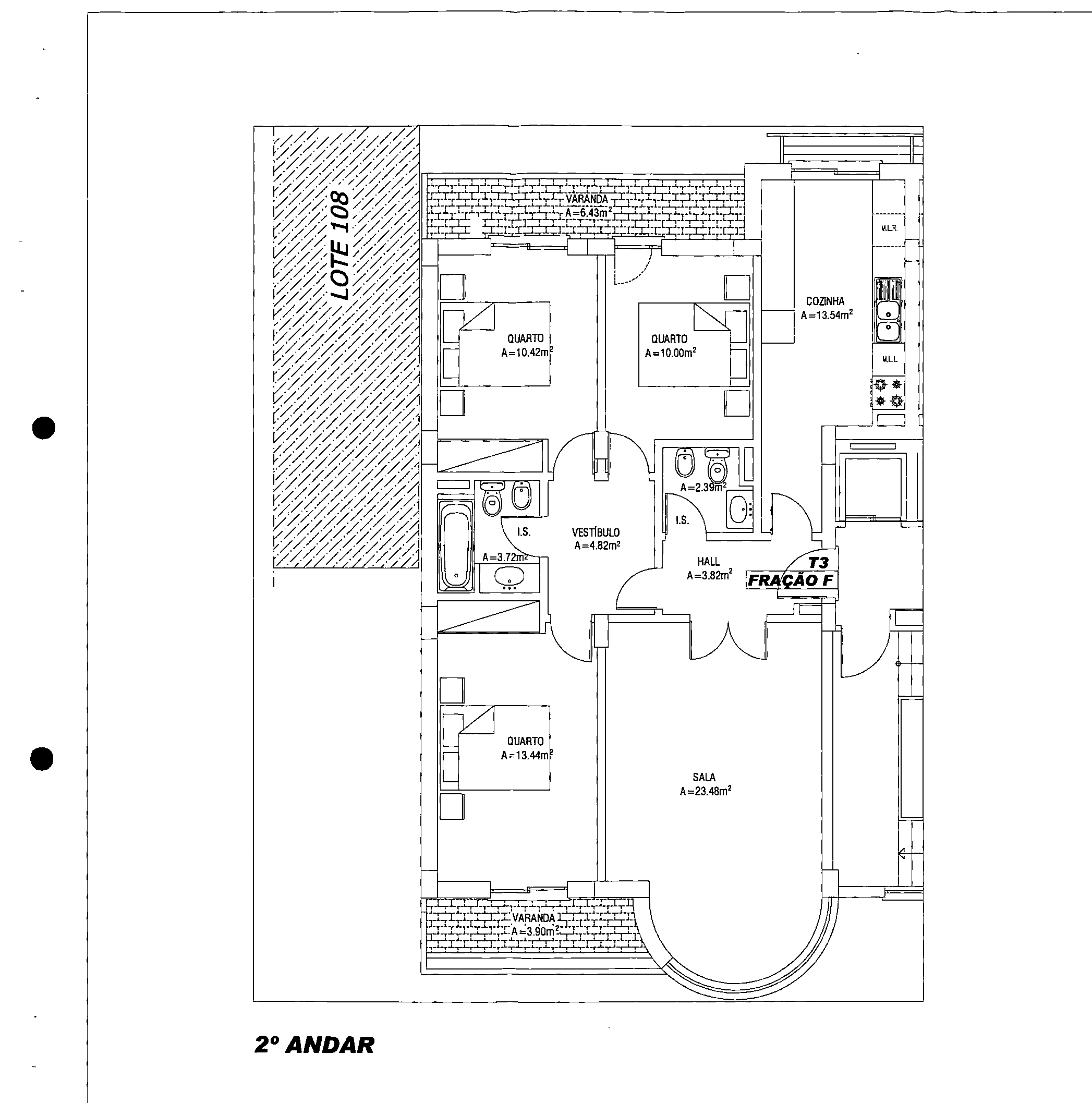
Apartamento T3 com uma área total de 139 m² (114 m² de área privativa e 24 m² de área dependente a que corresponde uma arrecadação), situado em Alenquer, distrito de Lisboa

Imóvel inserido no 2º andar, com excelente exposição solar

É composto por:
- hall de entrada
- sala de estar
- três quartos
- cozinha
- duas casas de banho

Muito bem localizado em zona residencial consolidada, próximo de pontos de comércio, serviços e escolas

Está localizado próximo da zona de comércio e serviços de Alenquer e com acesso facilitado às vias rodoviárias principais:
A1 (Autoestrada do Norte) - serve como uma ligação essencial entre o Norte e o Sul de Portugal
A10 (Autoestrada do Ribatejo) - atravessa a região e liga o concelho de Alenquer à área


ZTRE-04308

Features:

  • Year Built: 2011
  • Location: Subdivision: União das freguesias de Alenquer (Santo Estêvão e Triana)

Location:

União das freguesias de Alenquer (Santo Estêvão e Triana), Alenquer, Lisbon 2580-355, Portugal
Listed By CENTURY 21 NextLevel

The Residential For Sale, Apartment located in União das freguesias de Alenquer (Santo Estêvão e Triana), Alenquer, Lisbon 2580-355, Portugal is currently for sale. This property is listed for €249,000 EUR. This property has 3 bedrooms, 2 bathrooms and 139 m2. If this property isn't what you're looking for, search Lisbon Real Estate  to see other  Homes For Sale in Alenquer.

Large Photo