SWIPE FOR MORE IMAGES
€280,000 EUR
União das freguesias de Alcácer do Sal (Santa Maria do Castelo e Santiago) e Santa Susana
Alcácer do Sal, Setubal 7580-151
Portugal
Alcácer do Sal, Setubal 7580-151
Portugal
570.5 sqft ::
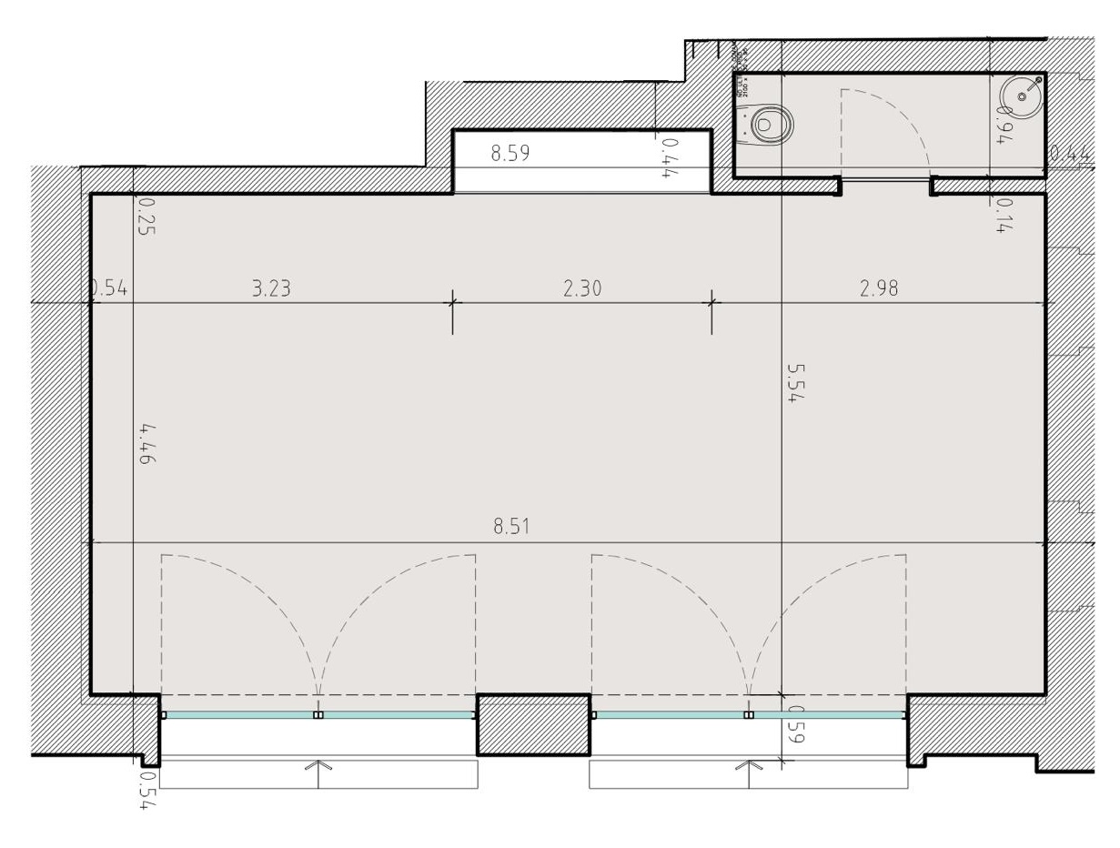
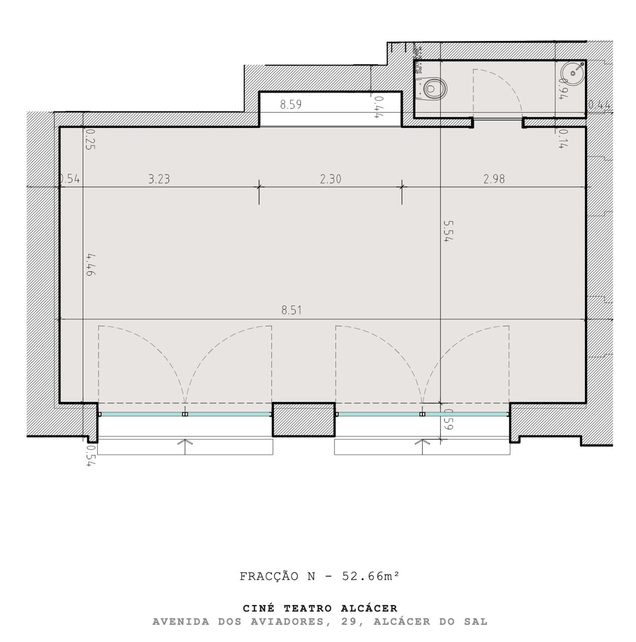
53 m2
1 bedroom
1 bath
1 room
Residential For Sale
Sale price per sqm: 6,241.89
Remarks: [Translate *]
Localizado na avenida principal de Alcácer do Sal, este espaço comercial de 53 m² faz parte do icónico projeto.
Com excelente visibilidade e extração de fumos instalada, este espaço é ideal para restaurante, café, pastelaria ou loja gourmet.
A fachada envidraçada permite aproveitar a luz natural e a constante passagem de pessoas numa das zonas mais movimentadas do centro histórico, junto ao rio Sado.
Fazer parte do edifício é integrar-se num projeto arquitetónico único, que combina história, design e modernidade, atraindo residentes e visitantes que procuram experiências autênticas e diferenciadas. Um espaço com alma, pronto para receber um conceito à altura do novo Alcácer.
Com a conclusão da obra prevista para Fevereiro de 2026, esta é a sua oportunidade de possuir um imóvel exclusivo e totalmente novo numa localização privilegiada. Viva rodeado de cultura, gastronomia e paisagens deslumbrantes.ttttttttttttt
ttttttttttttt
Acabamentos e materiais:ttttttttttttt
- Pavimento em mosaico porcelânico cinzento mate, resistente e elegantettttttttttttt
- Paredes e tetos em estuque pintado branco mate (RAL 9010)ttttttttttttt
- Cozinha moderna com bancadas em pedra natural Ruivina Cinzattttttttttttt
- Casas de banho com loiças suspensas e torneiras embutidasttttttttttttt
- Caixilharias em alumínio termo-lacado com vidro duplo, garantindo conforto térmico e acústicottttttttttttt
ttttttttttttt
Eficiência energética:ttttttttttttt
Construção com tijolo térmico, isolamento em cortiça e poliestireno expandido para máximo conforto e baixo consumo.ttttttttttttt
Certificado energético: classe B-ttttttttttttt
ttttttttttttt
Inclui estacionamento privativo.ttttttttttttt
ttttttttttttt
📞 Entre em contacto comigo hoje mesmo!ttttttttttttt
A nossa agência acompanha todo o processo de compra e pode ajudá-lo(a) a obter o melhor crédito habitação disponível.ttttttttttttt
Com excelente visibilidade e extração de fumos instalada, este espaço é ideal para restaurante, café, pastelaria ou loja gourmet.
A fachada envidraçada permite aproveitar a luz natural e a constante passagem de pessoas numa das zonas mais movimentadas do centro histórico, junto ao rio Sado.
Fazer parte do edifício é integrar-se num projeto arquitetónico único, que combina história, design e modernidade, atraindo residentes e visitantes que procuram experiências autênticas e diferenciadas. Um espaço com alma, pronto para receber um conceito à altura do novo Alcácer.
Com a conclusão da obra prevista para Fevereiro de 2026, esta é a sua oportunidade de possuir um imóvel exclusivo e totalmente novo numa localização privilegiada. Viva rodeado de cultura, gastronomia e paisagens deslumbrantes.ttttttttttttt
ttttttttttttt
Acabamentos e materiais:ttttttttttttt
- Pavimento em mosaico porcelânico cinzento mate, resistente e elegantettttttttttttt
- Paredes e tetos em estuque pintado branco mate (RAL 9010)ttttttttttttt
- Cozinha moderna com bancadas em pedra natural Ruivina Cinzattttttttttttt
- Casas de banho com loiças suspensas e torneiras embutidasttttttttttttt
- Caixilharias em alumínio termo-lacado com vidro duplo, garantindo conforto térmico e acústicottttttttttttt
ttttttttttttt
Eficiência energética:ttttttttttttt
Construção com tijolo térmico, isolamento em cortiça e poliestireno expandido para máximo conforto e baixo consumo.ttttttttttttt
Certificado energético: classe B-ttttttttttttt
ttttttttttttt
Inclui estacionamento privativo.ttttttttttttt
ttttttttttttt
📞 Entre em contacto comigo hoje mesmo!ttttttttttttt
A nossa agência acompanha todo o processo de compra e pode ajudá-lo(a) a obter o melhor crédito habitação disponível.ttttttttttttt
Features:
- Year Built: 2025
- Location: Subdivision: União das freguesias de Alcácer do Sal (Santa Maria do Castelo e Santiago) e Santa Susana
- Number of assigned or reserved parking spaces: 1
Location:
União das freguesias de Alcácer do Sal (Santa Maria do Castelo e Santiago) e Santa Susana, Alcácer do Sal, Setubal 7580-151, Portugal
Listed By CENTURY 21 Nações V
The Residential For Sale located in União das freguesias de Alcácer do Sal (Santa Maria do Castelo e Santiago) e Santa Susana, Alcácer do Sal, Setubal 7580-151, Portugal is currently for sale. This property is listed for €280,000 EUR. This property has 1 bedroom, 1 bathroom and 53 m2. If this property isn't what you're looking for, search Setúbal Real Estate to see other Homes For Sale in Alcácer do Sal.


1.jpg)
1.jpg)
1.jpg)


