NEWLY LISTED
SWIPE FOR MORE IMAGES
$465,000 USD
948 Picaacho Drive
La Habra Heights, California 90631
USA
La Habra Heights, California 90631
USA
0.672 ha ::
1.66 acres
Land for sale, Vacant Land
Sale price per sqm: 69.22
Remarks:
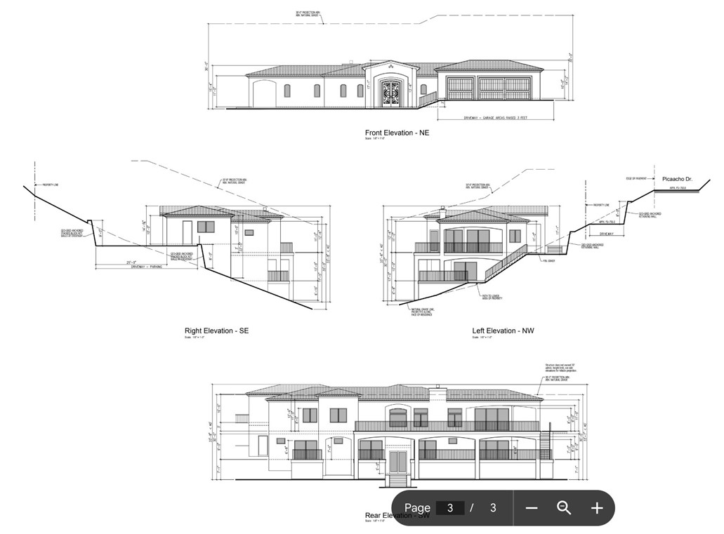
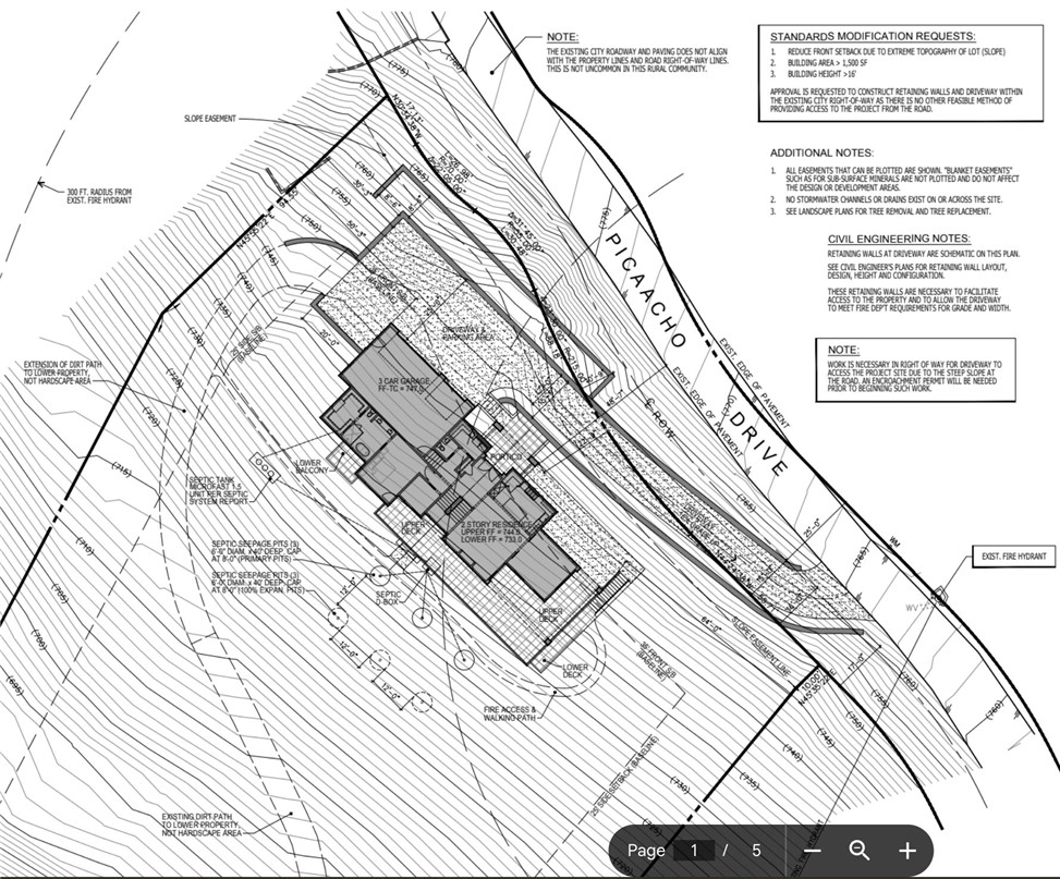
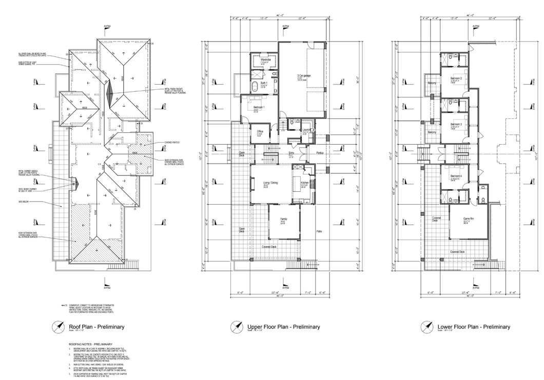
Vacant panoramic view lot with completed architectural plans for a custom luxury residence in the prestigious hills of La Habra Heights. This exceptional approximately 1.6-acre hillside parcel offers breathtaking city-light and ocean views and the opportunity to continue a thoughtfully designed approximately 3,100 square foot two-story home featuring 4 bedrooms, expansive view decks, and an attached 3-car garage, all positioned to maximize privacy and surrounding scenery. Extensive site studies and engineering work have already been completed, including soils investigation and septic feasibility, providing a significant head start for the next owner. The project has progressed through Planning, Engineering, Fire, and Landscape review with the City of La Habra Heights and is pending final civil engineering completion prior to RTI clearance, with approximately $3,500 remaining for grading plan submittal and civil clearance. The property features approximately 218 feet of frontage, approximately 387 feet of depth, and about 180 feet of width across the lower portion of the lot, creating a generous building envelope and flexible design potential. A rare small flat pad at the lower portion of the property offers additional possibilities for a future ADU, guest house, studio, pool area, garden retreat, or outdoor entertaining space, subject to city approval. Surrounded by multi-million-dollar estates and tranquil hillside landscapes, this is a rare opportunity to acquire a premier view lot with meaningful architectural and engineering progress already in place. On exceptionally clear days, Catalina Island may be visible in the distance. All information deemed reliable but not guaranteed. Buyers to independently verify plans, permits, utilities, boundaries, and development requirements.
Location:
948 Picaacho Drive, La Habra Heights, California 90631, USA
Listed By CENTURY 21 Masters
The Land for sale, Vacant Land located at 948 Picaacho Drive, La Habra Heights, California 90631, USA is currently for sale. 948 Picaacho Drive, La Habra Heights, California 90631, USA is listed for $465,000 USD. If the property located at 948 Picaacho Drive, La Habra Heights, California 90631, USA isn't what you're looking for, search California Real Estate to see other Land For Sale in La Habra Heights.
