Commercial For Sale: USA Wisconsin Menasha 850 Racine Street
SWIPE FOR MORE IMAGES

$500,000 USD

850 Racine Street
Menasha, Wisconsin 54952-2342
USA
Commercial for Sale, Other Commercial Property
Sale price per sqm: 0
Tax: 4,587 USD
CENTURY 21 Ace Realty
303 South Bluemound Drive
Appleton, Wisconsin 54914, United States
Phone: 9207392121

Yes, I would like more information from C21. Please use and/or share my information with a C21 Agent to contact me about my real estate needs.

By clicking Contact Agent, I agree a C21 Agent may contact me by phone or text message including by automated means about real estate services, and that I can access real estate services without providing my phone number. I acknowledge that I have read and agree to the Terms of Use and Privacy Policy.

Remarks:

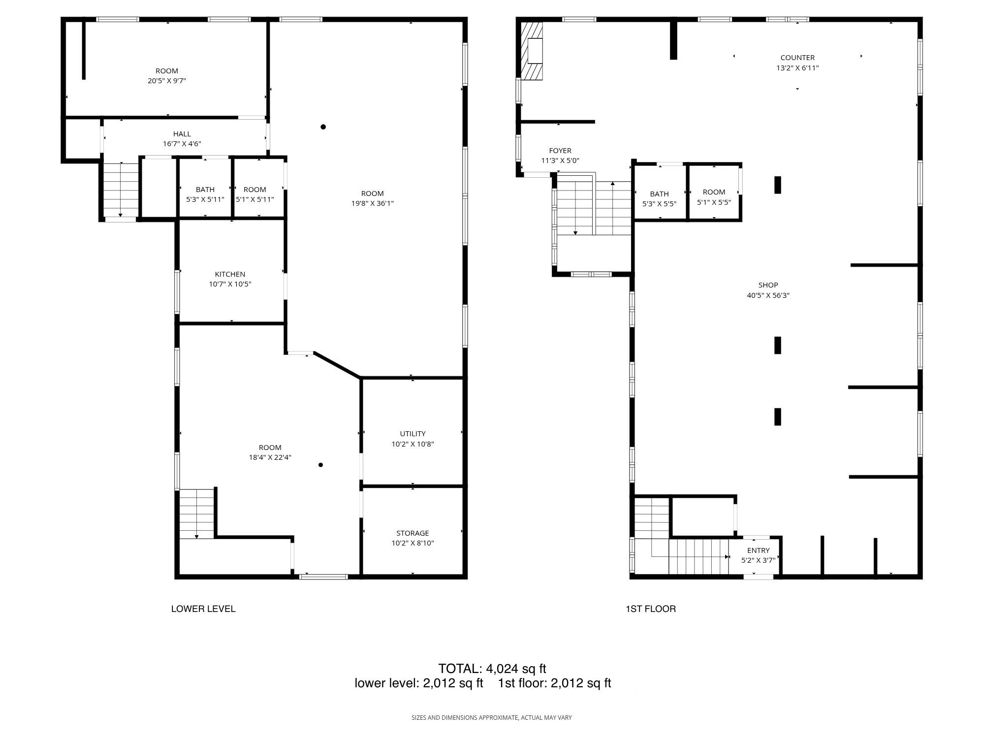
Well-suited for retail, office, service-based businesses, or contractor use, this commercial property offers 4,024 sq ft with a functional and flexible layout. The main level includes a large open shop/work area, front counter/reception space, office, and restroom. The full lower level provides additional finished space with multiple rooms, a kitchen area, bathroom, and storage. Situated on a .25-acre corner lot, the property offers strong visibility along Racine St with convenient access to Hwy 441. The building features a poured concrete foundation, forced air heat, central A/C, municipal water and sewer, and onsite paved parking.

Features:

  • Year Built: 1983
  • Exterior Description: Stone
  • Heating System: Forced Air
  • Basement and Foundation: Full basement

Location:

850 Racine Street, Menasha, Wisconsin 54952-2342, USA
Listed By CENTURY 21 Ace Realty

The Commercial for Sale, Other Commercial Property located at 850 Racine Street, Menasha, Wisconsin 54952-2342, USA is currently for sale. 850 Racine Street, Menasha, Wisconsin 54952-2342, USA is listed for $500,000 USD. If the property located at 850 Racine Street, Menasha, Wisconsin 54952-2342, USA isn't what you're looking for, search Wisconsin Real Estate to see other Commercial For Sale in Menasha.

Large Photo