NEWLY LISTED
SWIPE FOR MORE IMAGES
$18 USD
5001 Sergeant Rd #340
Sioux City, Iowa 51106
USA
Sioux City, Iowa 51106
USA
Commercial for lease, Other Commercial Property
Sale price per sqm: 0
Remarks:
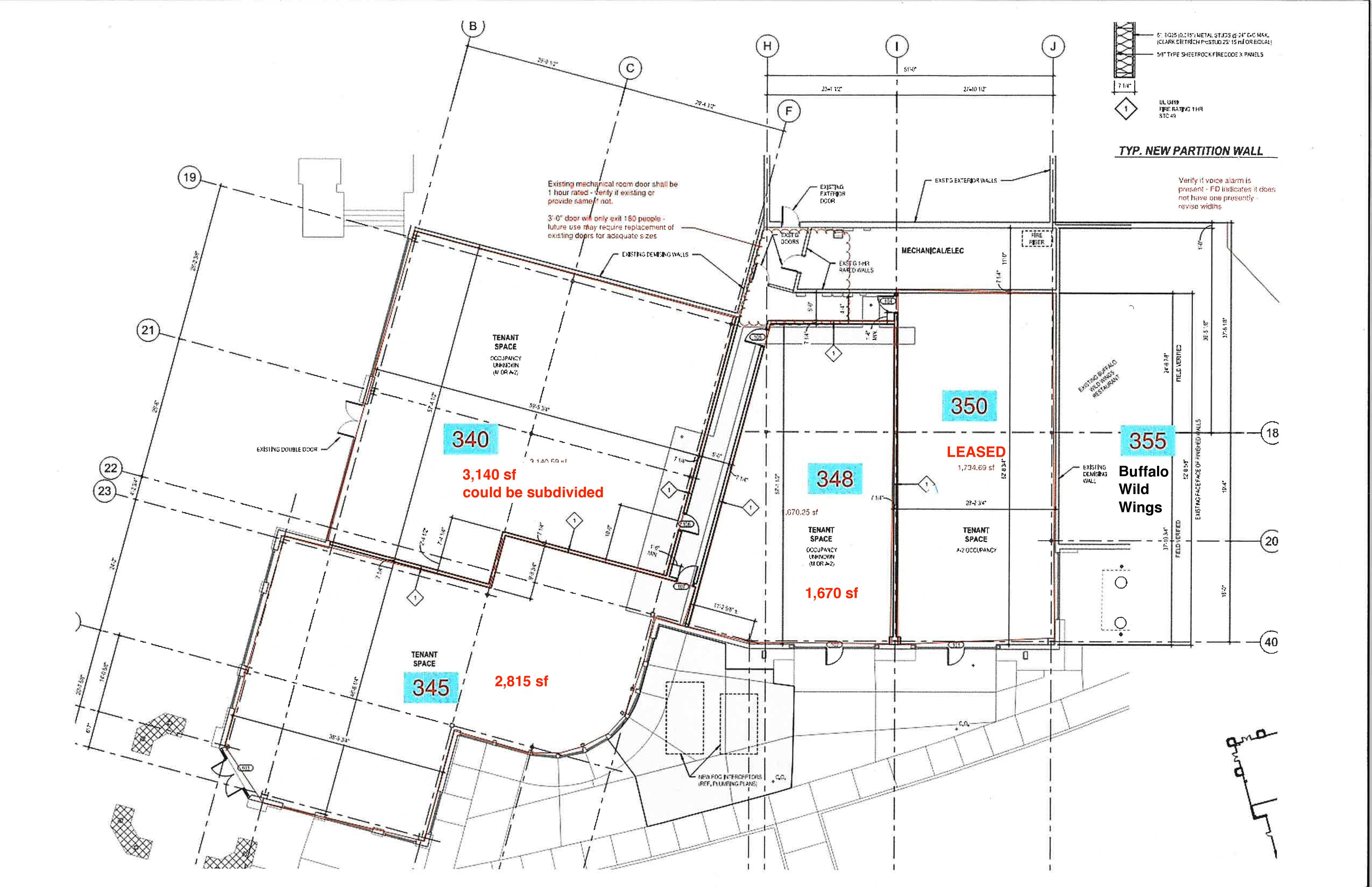
UNDER NEW OWNERSHIP WITH MAJOR UPGRADES PLANNED!!! NOW IS THE TIME TO LEASE IN THIS CENTER. Join the only regional shopping center for over 80 miles! With traffic counts of well over 50,000 vehicles a day and attracting over 4.5 million annual shoppers your business should be here! The center boosts impressive neighbors like Aldi, Ross, Old Navy, Starbucks, Staples, Red Robin, Olive Garden and so many MORE! Located conveniently in the main shopping area of Siouxland with easy access to Hwy 20 and I29. There are several size suites available, please refer to floor plan. All spaces have been completely gutted and are ready for your layout. AGRESSIVE TI!! CAM is estimated at $7.57/sf.
Features:
- Building age: 1-5 years old
- Lease: Lease Rate Minimum: 18.5 USD / Monthly
Location:
5001 Sergeant Rd #340, Sioux City, Iowa 51106, USA
Listed By CENTURY 21 ProLink
The Commercial for lease, Other Commercial Property located at 5001 Sergeant Rd #340, Sioux City, Iowa 51106, USA is currently for rent. 5001 Sergeant Rd #340, Sioux City, Iowa 51106, USA is listed for $18.5 USD. If the property located at 5001 Sergeant Rd #340, Sioux City, Iowa 51106, USA isn't what you're looking for, search Iowa Real Estate to see other Commercial For Lease in Sioux City.
