SWIPE FOR MORE IMAGES
$999,000 USD
4979 Olivehurst Avenue
Olivehurst, California 95961
USA
Olivehurst, California 95961
USA
721.647 m2 ::
7,768 sqft
Commercial for Sale, Other Commercial Property
Sale price per sqm: 1,384.29
Remarks:
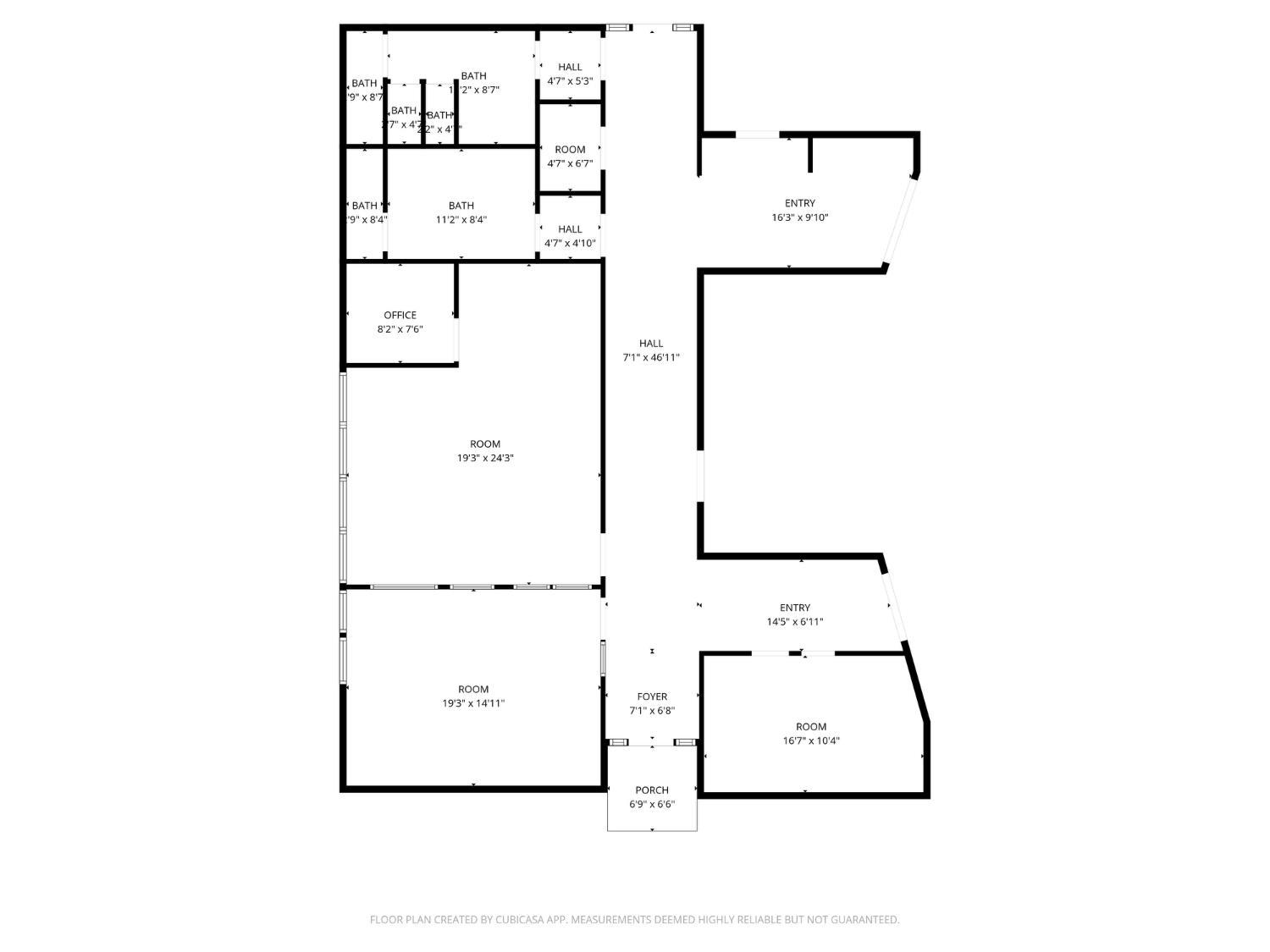
Versatile Corner Commercial Property: This 7,768 SF commercial building sits on a 0.83-acre corner lot with excellent visibility and access, featuring two entrances from Olivehurst Street and one from 6th Avenue. The fully metal-fenced property offers security, strong curb appeal, and ample on-site parking. The front portion is currently occupied by a pharmacy and includes a waiting area, pharmacy workspace, storage, men's and women's restrooms, and a kitchen. The kitchen connects to a large rear hall through two serving windows. The hall features its own entrances, separate HVAC system, bar area with three sinks, secured gates, and an industrial roll-up doorideal for events or flexible commercial use. Surrounded by strong neighboring businesses including a post office, medical offices, and gas stations, this property is well positioned for an owner-user or investor. Suitable for retail, office, event center, showroom, or light industrial use, with potential for two separate tenants. A rare opportunity with multiple use options. Contact for a showing.
Location:
4979 Olivehurst Avenue, Olivehurst, California 95961, USA
Listed By CENTURY 21 Select Real Estate, Inc.
The Commercial for Sale, Other Commercial Property located at 4979 Olivehurst Avenue, Olivehurst, California 95961, USA is currently for sale. 4979 Olivehurst Avenue, Olivehurst, California 95961, USA is listed for $999,000 USD. This property has 7,768 sqft. If the property located at 4979 Olivehurst Avenue, Olivehurst, California 95961, USA isn't what you're looking for, search California Real Estate to see other Commercial For Sale in Olivehurst.
