SWIPE FOR MORE IMAGES
$349,900 USD
4523 E Parkwood Drive
Martinsville, Indiana 46151-6023
USA
Martinsville, Indiana 46151-6023
USA
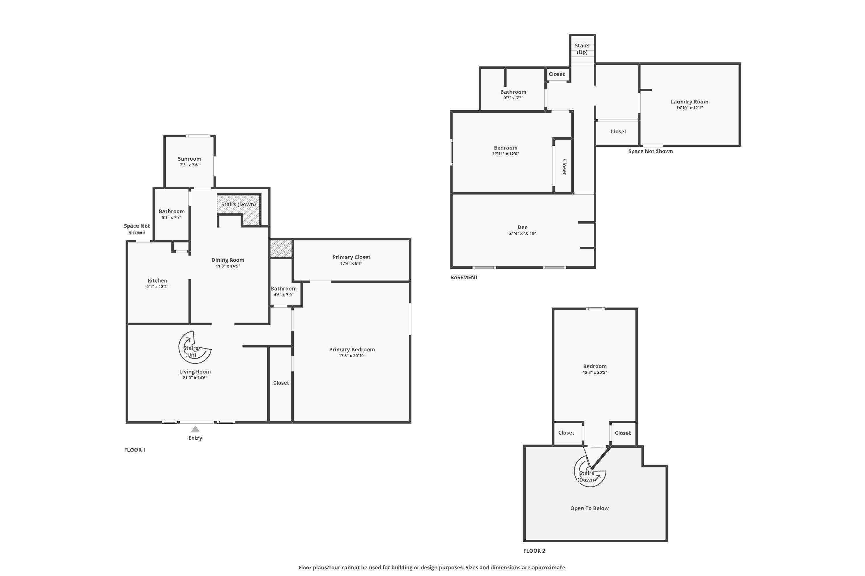
257.147 m2 ::
2,768 sqft
4 bedrooms
2 full baths, 1 half bath
Residential For Sale, Single Family Detached
Land size: 0.587 ha ::
1.45 acres
Sale price per sqm: 1,360.65
Tax: 392 USD
Remarks:
Welcome to your Private 1.45-Acre Retreat in Painted Hills! If you've been looking for lake communities, but refuse to settle for a cookie-cutter subdivision, this is the 'blank slate' you've been waiting for. Tucked on a private, wooded 1.45-acre lot, this home has been completely cleared of all belongings‹”offering a clean, vacant canvas for your specific vision.Experience an elevated way of living in the sought-after Painted Hills community, where luxury amenities meet a relaxed, lakeside pace. Living here feels exclusive. You aren't just buying a home; you're gaining exclusive access to the Painted Hills lifestyle: private boat docks, a community pool, tennis, and pickleball courts‹”even a dog park‹”amenities usually reserved for a much higher bracket. For the hobbyist, the massive detached 4-car workshop is the crown jewel. With ample space for automotive restoration, a professional woodworking studio, or a high-end creative escape, it offers a level of utility you simply won't find at this price point. Getting in now means you'll be settled in time to watch the 1.4 acres bloom into a private canopy and hit the lake just as the season peaks. Whether you're an artist seeking silence, a nature lover looking for mature trees, or a maker who needs a proper shop, the opportunity to claim this unique sanctuary is now.
Features:
- Year Built: 1971
- Exterior Description: Cedar Siding, Stone
- Recreational Features: Playground
- Area amenities: Tennis Courts
- Utilities: Septic tank
- Cooling System: Central AC
- Lot Description: Corner Lot, Wooded
- Basement and Foundation: Walk out Basement, Finished basement
- Association/Community Features Description: Clubhouse
- Garage Spaces: 4
- Garage Description: Attached Garage
Location:
4523 E Parkwood Drive, Martinsville, Indiana 46151-6023, USA
Listed By CENTURY 21 Scheetz
The Residential For Sale, Single Family Detached located at 4523 E Parkwood Drive, Martinsville, Indiana 46151-6023, USA is currently for sale. 4523 E Parkwood Drive, Martinsville, Indiana 46151-6023, USA is listed for $349,900 USD. This property has 4 bedrooms, 2 full baths, 1 half bath and 2,768 sqft. If the property located at 4523 E Parkwood Drive, Martinsville, Indiana 46151-6023, USA isn't what you're looking for, search Indiana Real Estate to see other Homes For Sale in Martinsville.
