NEWLY LISTED
SWIPE FOR MORE IMAGES
$1,500,000 CAD
39 STAGE COACH TRAIL
Rural Rocky View County, Alberta T4A 0P4
Canada
Rural Rocky View County, Alberta T4A 0P4
Canada
174.28 m2 ::
1,876 sqft
7 bedrooms
3 full baths
Residential For Sale, Single Family
Land size: 0.862 ha ::
2.13 acres
Sale price per sqm: 6,312.55
Remarks:
The nicest location in Sharp Hill with over 2 acres, mature trees & so much privacy! 2 heated triple garages! Welcome to this exceptional acreage retreat offering the perfect balance of privacy, luxury, & convenience—just minutes from everyday amenities.
Step into the bright & welcoming foyer, highlighted by soaring vaulted ceilings and expansive windows that flood the space with natural light. Upstairs, the open-concept living, dining, & kitchen area impresses with stunning 12-foot vaulted ceilings & custom built-ins framing the cozy gas fireplace. Large windows showcase breathtaking views of mature trees, the distant Rocky Mountains, & create a warm, inviting atmosphere throughout.
Just off the kitchen, step out onto the patio to enjoy spectacular sunset views.
The spacious primary bedroom features a 4-piece ensuite with double sinks, a large shower, & a separate walk-in closet. Unique ceiling lighting adds an elegant ambiance. 2 additional bedrooms upstairs also feature stylish ceiling lighting, while the conveniently located main floor laundry room offers ample cabinetry.
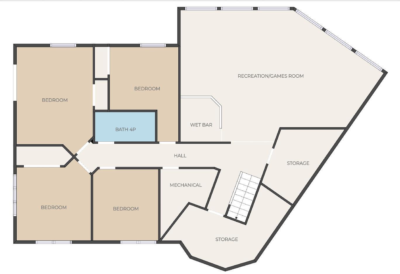
The basement boasts 9-foot ceilings, 4 additional bedrooms, and a full bathroom—ideal for larger families or multi-generational living. The expansive recreation room includes oversized windows, a wet bar, & a 2nd fireplace with custom built-ins. The walkout sliding door accesses a beautiful large concrete patio to sit among the trees. There’s also a generous storage room & an under-the-stairs playroom—perfect for kids or additional storage.
Car or hobby enthusiasts will appreciate the attached triple oversized garage with 14-foot ceilings to accommodate a lift, including one 11-foot high door. This heated & drywalled space also features upper storage, a closet, man door access, & rough-in plumbing for a sink. In addition, a newer 2nd detached triple garage is powered, heated, & drywalled. Surrounded by mature trees, this private property feels like your own personal park. A picturesque gazebo sits beside the pond, which transforms into a skating rink in winter, complete with power & water access. On the back side of the home, enjoy cozy evenings gathered around the fire pit area. The yard offers both mountain & glimpses of downtown Calgary in the distance—an incredible backdrop for everyday living.
The paved driveway is beautifully illuminated by classic lamp posts, creating a stunning approach to the home. All of this, just 5 minutes from Costco, CrossIron Mall, & all amenities in Airdrie
Upgrades include high-end Graber blinds throughout (with electric blinds in the main living area), phantom screens, garburator, new plumbing, newer carpets, a 4-zone ultra high-efficiency furnace, water softener, two hot water tanks
A rare opportunity to own a luxurious, private acreage with unbeatable access to both nature & city convenience.
Step into the bright & welcoming foyer, highlighted by soaring vaulted ceilings and expansive windows that flood the space with natural light. Upstairs, the open-concept living, dining, & kitchen area impresses with stunning 12-foot vaulted ceilings & custom built-ins framing the cozy gas fireplace. Large windows showcase breathtaking views of mature trees, the distant Rocky Mountains, & create a warm, inviting atmosphere throughout.
Just off the kitchen, step out onto the patio to enjoy spectacular sunset views.
The spacious primary bedroom features a 4-piece ensuite with double sinks, a large shower, & a separate walk-in closet. Unique ceiling lighting adds an elegant ambiance. 2 additional bedrooms upstairs also feature stylish ceiling lighting, while the conveniently located main floor laundry room offers ample cabinetry.
The basement boasts 9-foot ceilings, 4 additional bedrooms, and a full bathroom—ideal for larger families or multi-generational living. The expansive recreation room includes oversized windows, a wet bar, & a 2nd fireplace with custom built-ins. The walkout sliding door accesses a beautiful large concrete patio to sit among the trees. There’s also a generous storage room & an under-the-stairs playroom—perfect for kids or additional storage.
Car or hobby enthusiasts will appreciate the attached triple oversized garage with 14-foot ceilings to accommodate a lift, including one 11-foot high door. This heated & drywalled space also features upper storage, a closet, man door access, & rough-in plumbing for a sink. In addition, a newer 2nd detached triple garage is powered, heated, & drywalled. Surrounded by mature trees, this private property feels like your own personal park. A picturesque gazebo sits beside the pond, which transforms into a skating rink in winter, complete with power & water access. On the back side of the home, enjoy cozy evenings gathered around the fire pit area. The yard offers both mountain & glimpses of downtown Calgary in the distance—an incredible backdrop for everyday living.
The paved driveway is beautifully illuminated by classic lamp posts, creating a stunning approach to the home. All of this, just 5 minutes from Costco, CrossIron Mall, & all amenities in Airdrie
Upgrades include high-end Graber blinds throughout (with electric blinds in the main living area), phantom screens, garburator, new plumbing, newer carpets, a 4-zone ultra high-efficiency furnace, water softener, two hot water tanks
A rare opportunity to own a luxurious, private acreage with unbeatable access to both nature & city convenience.
Features:
- Year Built: 1998
- Property Features: Fireplace
Location:
39 STAGE COACH TRAIL, Rural Rocky View County, Alberta T4A 0P4, Canada
Listed By CENTURY 21 Bamber Realty Ltd.
The Residential For Sale, Single Family located at 39 STAGE COACH TRAIL, Rural Rocky View County, Alberta T4A 0P4, Canada is currently for sale. 39 STAGE COACH TRAIL, Rural Rocky View County, Alberta T4A 0P4, Canada is listed for $1,500,000 CAD. This property has 7 bedrooms, 3 full baths and 1,876 sqft. If the property located at 39 STAGE COACH TRAIL, Rural Rocky View County, Alberta T4A 0P4, Canada isn't what you're looking for, search Alberta Real Estate to see other Homes For Sale in Rural Rocky View County.
















































