Homes For Sale: Canada Alberta Edmonton 3683 8 ST NW
SWIPE FOR MORE IMAGES

$619,500 CAD

3683 8 ST NW
Edmonton, Alberta T6T 0S3
Canada
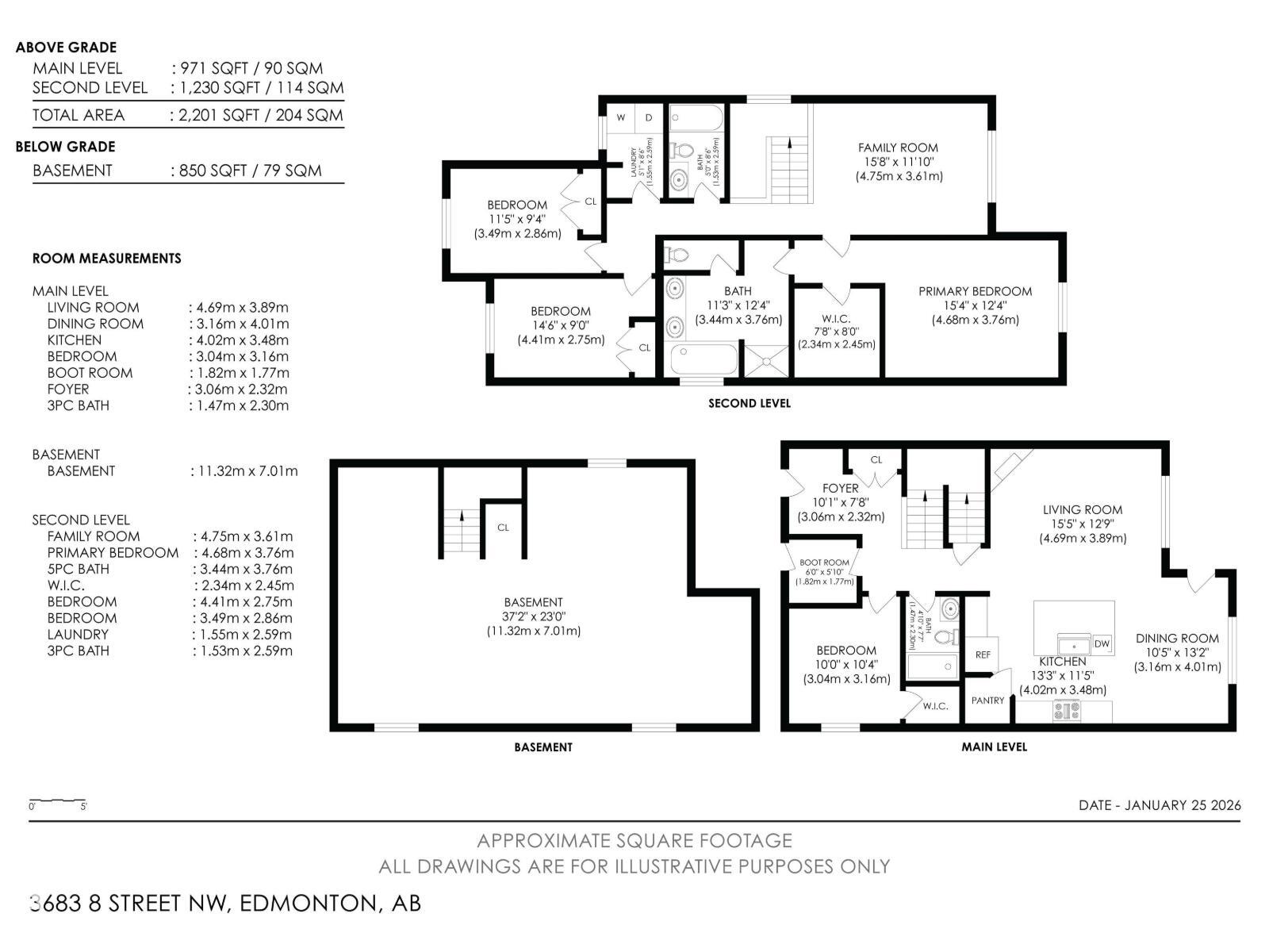
204.008 m2 :: 2,196 sqft
4 bedrooms
3 full baths
Residential For Sale, Single Family
Sale price per sqm: 2,212.66
CENTURY 21 Masters
10555 172 Street, Unit 201
Edmonton, Alberta T5S1P1, Canada
Phone: 587-589-3968

Yes, I would like more information from C21. Please use and/or share my information with a C21 Agent to contact me about my real estate needs.

By clicking Contact Agent, I agree a C21 Agent may contact me by phone or text message including by automated means about real estate services, and that I can access real estate services without providing my phone number. I acknowledge that I have read and agree to the Terms of Use and Privacy Policy.

Remarks:

REMARKABLE, BACKS ONTO NATURE TRAILS, well-maintained two-storey home built by Landmark Homes. The home offers 4 spacious bedrooms, a large family room, 3.5 baths, & a stunning ensuite bathroom. The main floor has beautiful hardwood flooring, 1 main floor bedroom, a 4-piece bathroom, a gas fireplace, & open living with large windows. The kitchen features an oversized granite island countertop, plenty of cabinet space, pantry, stainless steel appliances, & a generously sized dining room. Upstairs has 3 bedrooms, featuring a 5-piece ensuite bathroom and walk-in closet in the primary room. The open family room has picturesque windows looking out to green space.The basement is ready for you to finish. There is plenty of parking on the large driveway pad & in the double garage. Entertain in the oasis of a fenced-in backyard featuring a large deck for relaxing. This property is special as it is on a corner lot & backs onto nature trails & green space—great for fitness and nature enthusiasts. Welcome home. (id:42016)

Features:

  • Year Built: 2013
  • Property Features: Fireplace
  • Heating System: Forced Air
  • Cooling System: Central Air Conditioning (zoned)

Location:

3683 8 ST NW, Edmonton, Alberta T6T 0S3, Canada
Listed By CENTURY 21 Masters

The Residential For Sale, Single Family located at 3683 8 ST NW, Edmonton, Alberta T6T 0S3, Canada is currently for sale. 3683 8 ST NW, Edmonton, Alberta T6T 0S3, Canada is listed for $619,500 CAD. This property has 4 bedrooms, 3 full baths and 2,196 sqft. If the property located at 3683 8 ST NW, Edmonton, Alberta T6T 0S3, Canada isn't what you're looking for, search Alberta Real Estate to see other Homes For Sale in Edmonton.

Large Photo