SWIPE FOR MORE IMAGES
$1,500,000 USD
356-360 Belleville Tpk
North Arlington, New Jersey 07031
USA
North Arlington, New Jersey 07031
USA
12 bedrooms
12 full baths
Commercial for Sale, Multi-Family Home
Sale price per sqm: 0
Remarks:
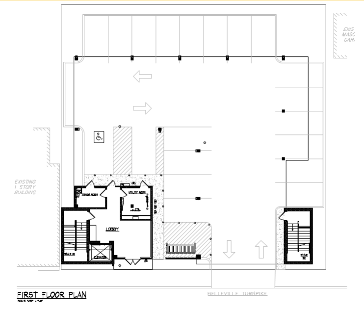
Prime development opportunity at 356?360 Belleville Turnpike, North Arlington. This approved site offers a rare chance to develop a 12-unit apartment building in a high-demand commuter location.
The approved plans feature spacious 900 sq. ft. units, each thoughtfully designed with a living room, kitchen, bedroom, and full bath, appealing to today's renters who want comfort and functionality. The project includes parking for 20 cars and a full elevator building, enhancing accessibility and long-term tenant appeal.
Ideally located just minutes from NYC transportation, this property is perfectly positioned for commuters seeking convenience without sacrificing space. Strong rental demand, a commuter-friendly location, and an already-approved plan make this an outstanding opportunity for developers and investors looking to capitalize on North Arlington's continued growth.
Translation: approvals in hand, location on point, and a layout renters actually want. That's a win all around.
The approved plans feature spacious 900 sq. ft. units, each thoughtfully designed with a living room, kitchen, bedroom, and full bath, appealing to today's renters who want comfort and functionality. The project includes parking for 20 cars and a full elevator building, enhancing accessibility and long-term tenant appeal.
Ideally located just minutes from NYC transportation, this property is perfectly positioned for commuters seeking convenience without sacrificing space. Strong rental demand, a commuter-friendly location, and an already-approved plan make this an outstanding opportunity for developers and investors looking to capitalize on North Arlington's continued growth.
Translation: approvals in hand, location on point, and a layout renters actually want. That's a win all around.
Features:
- Number of parking spaces: 20
Location:
356-360 Belleville Tpk, North Arlington, New Jersey 07031, USA
Listed By CENTURY 21 Semiao & Associates
The Commercial for Sale, Multi-Family Home located at 356-360 Belleville Tpk, North Arlington, New Jersey 07031, USA is currently for sale. 356-360 Belleville Tpk, North Arlington, New Jersey 07031, USA is listed for $1,500,000 USD. This property has 12 bedrooms, 12 full baths. If the property located at 356-360 Belleville Tpk, North Arlington, New Jersey 07031, USA isn't what you're looking for, search New Jersey Real Estate to see other Commercial For Sale in North Arlington.
