NEWLY LISTED
SWIPE FOR MORE IMAGES
$799,900 CAD
3339 BOTHE ROAD
Kelowna, British Columbia V1W 3M3
Canada
Kelowna, British Columbia V1W 3M3
Canada
Remarks:
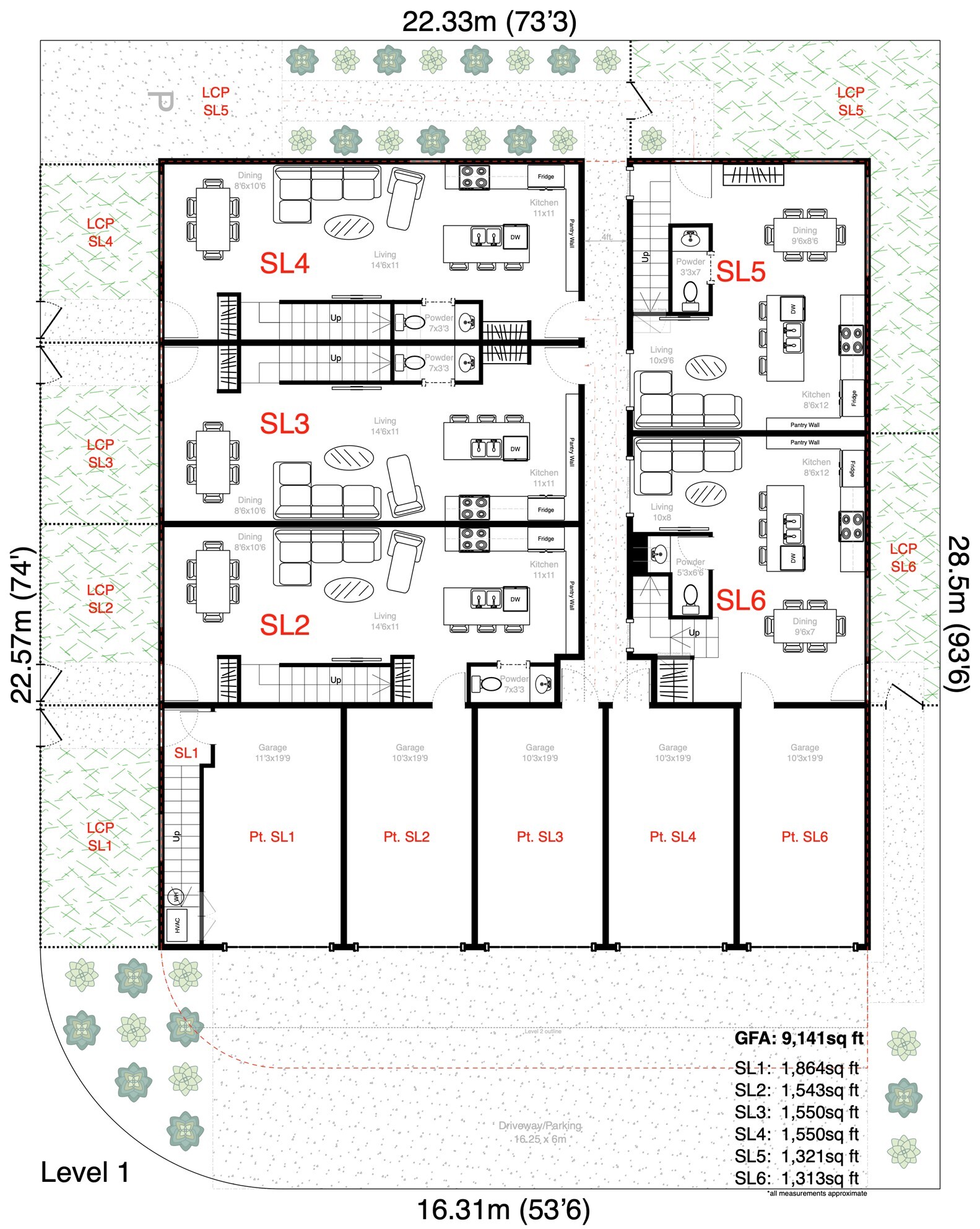
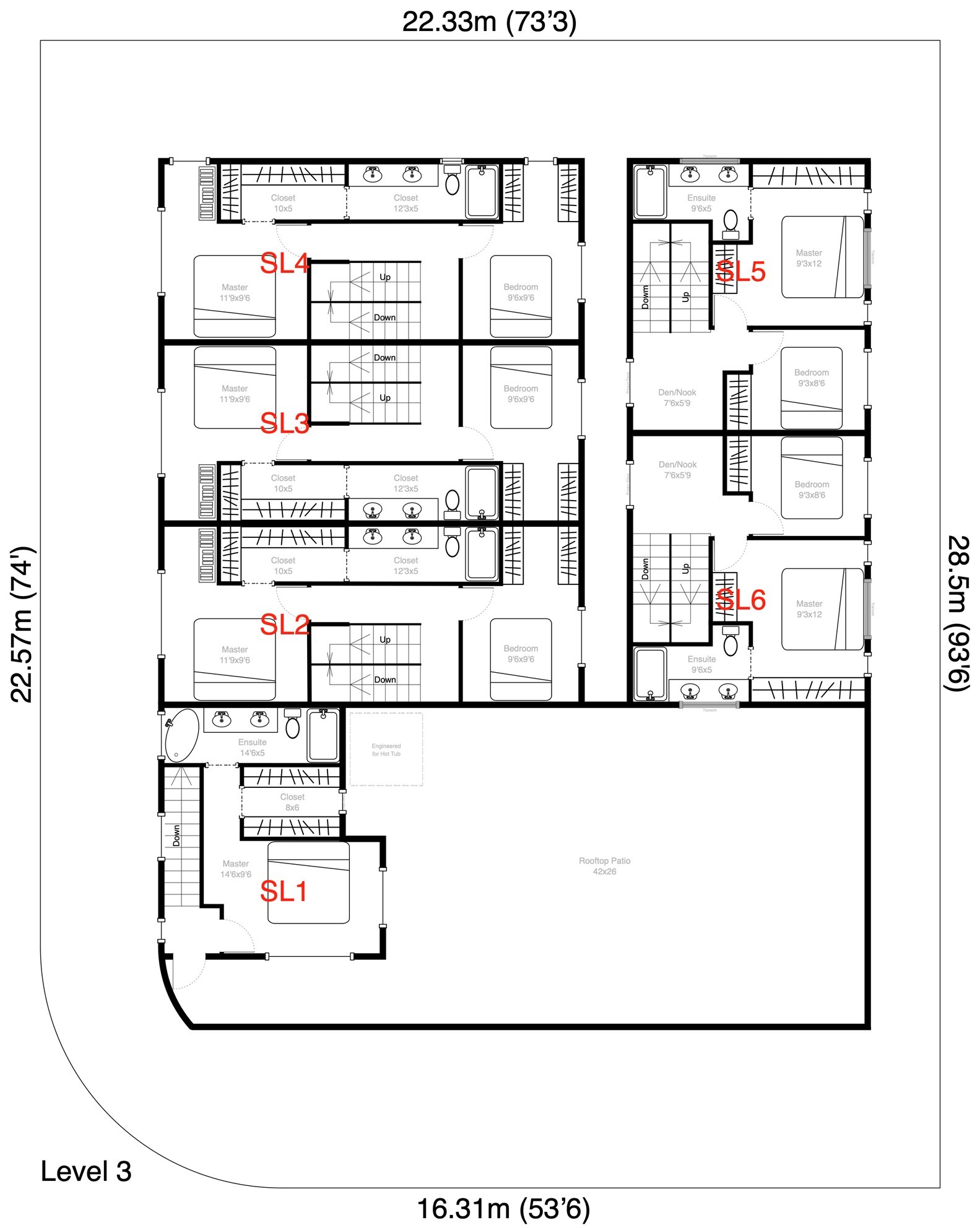
Offering strong rental income and future redevelopment potential, this property is an excellent investment opportunity. The land is already zoned to accommodate up to 6 townhouses and is located on a quiet street close to all that the South Pandosy neighbourhood has to offer—shopping, restaurants, beaches, schools, H2O Centre, public transit, and much more. Higher floors will enjoy beautiful pastoral views in almost every direction and will aid any future development in being a big success! Good rental revenue ensures that you can continue to rent out the property until the timing is right to redevelop or cash out. The increased Property Transfer Tax Exemption on new construction means that a buyer can now purchase an $850k townhouse with only $60k down if they are eligible for the GST and PTT exemptions. Furthermore, the latest change allowing high-ratio mortgages to amortize new construction over 30 years could result in said buyer’s mortgage payment being only $3.5k/mo (assuming a 3.09% interest rate at time of project completion). Sample floor plans have been provided to demonstrate what is possible, but the extensive street frontage of this lot provides considerable flexibility to realize your own development vision.
Location:
3339 BOTHE ROAD, Kelowna, British Columbia V1W 3M3, Canada
Listed By CENTURY 21 Assurance Realty Ltd.
The Land for sale, Vacant Land located at 3339 BOTHE ROAD, Kelowna, British Columbia V1W 3M3, Canada is currently for sale. 3339 BOTHE ROAD, Kelowna, British Columbia V1W 3M3, Canada is listed for $799,900 CAD. If the property located at 3339 BOTHE ROAD, Kelowna, British Columbia V1W 3M3, Canada isn't what you're looking for, search British Columbia Real Estate to see other Land For Sale in Kelowna.




























































