NEWLY LISTED
SWIPE FOR MORE IMAGES
$899,900 CAD
2669 HEARDCREEK TRAIL
London North, Ontario N6G 0Z8
Canada
London North, Ontario N6G 0Z8
Canada
4 bedrooms
4 baths
Residential For Sale, Single Family
Sale price per sqm: 0
Remarks:
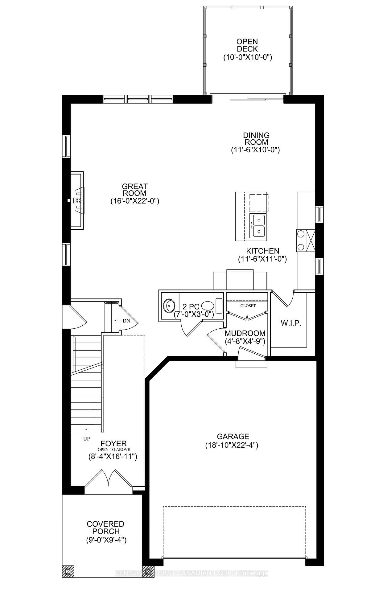
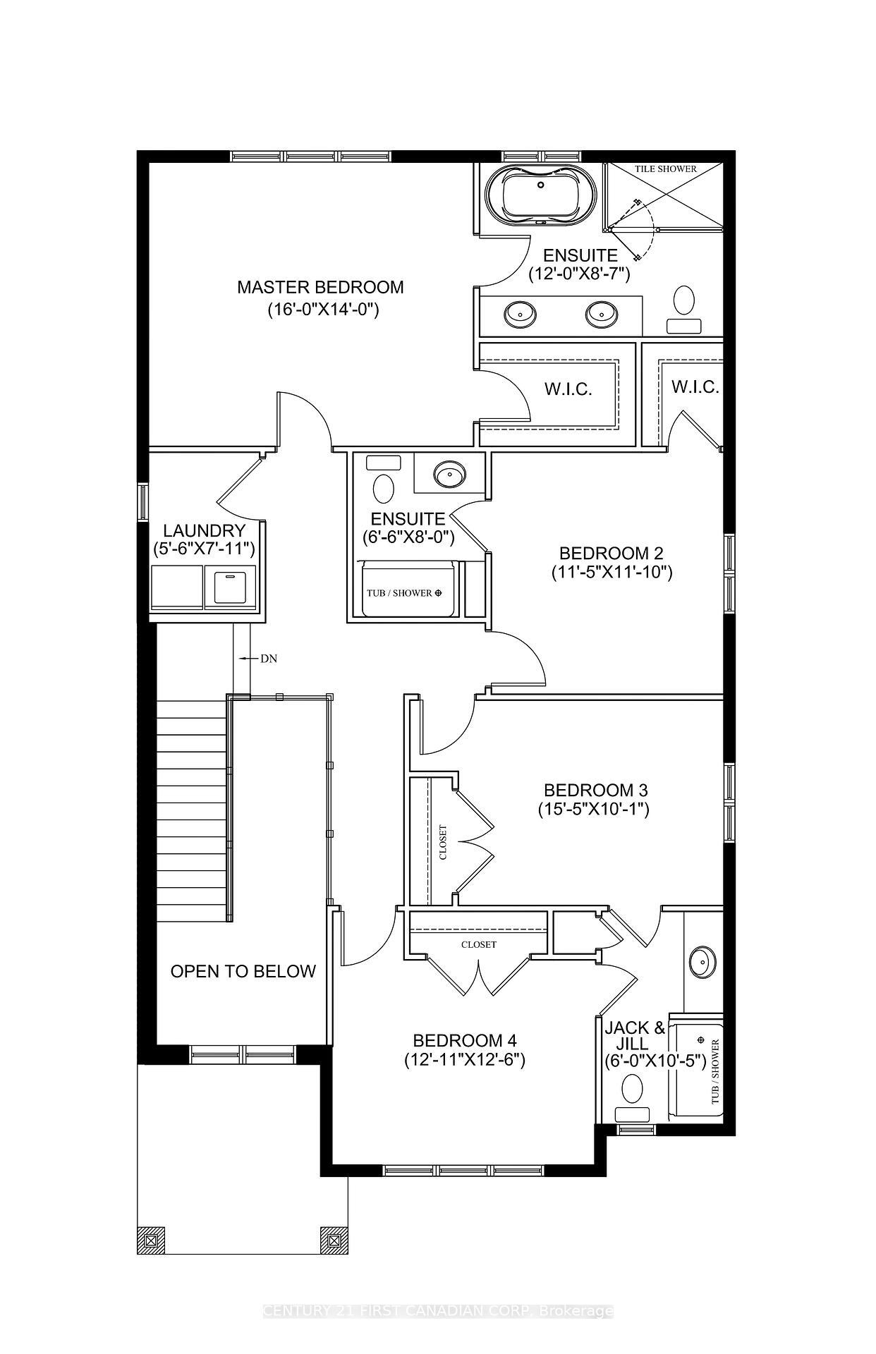
To Be Built, Price includes proposed 2026 HST rebates. Final rebate amount is subject to the passing of Provincial and Federal legislation and purchaser eligibility as per government guidelines, including primary residence or qualifying rental. Creekside Luxury Living - SHBUILDERS Inc is proud to present this stunning two-storey home - fully customizable to your own taste and will be built on a premium lookout lot backing onto the creek, offering the perfect balance of modern design and natural beauty. The exterior showcases timeless curb appeal with a stone and stucco front, complemented by brick and vinyl siding on the sides and back, along with a 10x10 pressure-treated deck to enjoy the peaceful views. Inside, the main floor features 9 ft ceilings with 8 ft doors, hardwood flooring throughout the living areas, and tile in all wet zones and showers. Premium finishes throughout the home further elevate the style and comfort. A welcoming foyer with double doors and open-to-above ceiling leads into the spacious great room, bright dining room with deck access, and a modern kitchen complete with island and walk-in pantry. A mudroom with closet, 2-piece bath, and garage access complete this level. Upstairs, the primary suite impresses with a spa-inspired ensuite offering a tile shower, soaker tub, double vanity, and dual walk-in closets. A second bedroom enjoys its own ensuite, while two additional bedrooms share a Jack & Jill bath. Convenient upstairs laundry adds to the thoughtful layout. The lower level has a separate entrance and provides potential with a large unfinished rec room, rough-ins for a kitchenette and 3-piece bath, a future bedroom, and an additional laundry hook-up Making it perfect for an in-law suite or the potential for renting out for supplemental income. Basement can be finished through the builder for an additional cost. Designed for todays lifestyle, this home offers the perfect combination of comfort, elegance, and creekside living.
Features:
- Location: Neighborhood: North S
- Exterior Description: Stone
- Heating System: Forced Air
- Cooling System: Central Air Conditioning (zoned)
Location:
2669 HEARDCREEK TRAIL, London North, Ontario N6G 0Z8, Canada
Listed By CENTURY 21 First Canadian Corp. Brokerage
The Residential For Sale, Single Family located at 2669 HEARDCREEK TRAIL, London North, Ontario N6G 0Z8, Canada is currently for sale. 2669 HEARDCREEK TRAIL, London North, Ontario N6G 0Z8, Canada is listed for $899,900 CAD. This property has 4 bedrooms, 4 bathrooms. If the property located at 2669 HEARDCREEK TRAIL, London North, Ontario N6G 0Z8, Canada isn't what you're looking for, search Ontario Real Estate to see other Homes For Sale in London North.









