SWIPE FOR MORE IMAGES
$999,500 CAD
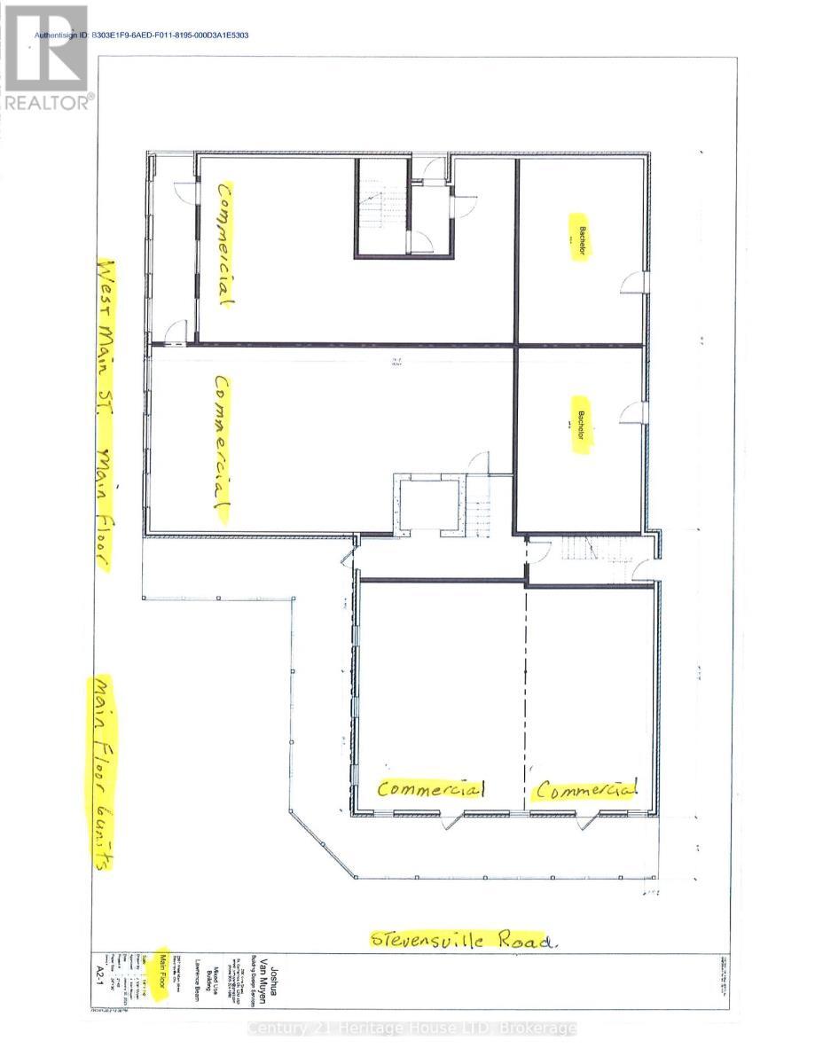
2567 STEVENSVILLE ROAD
Fort Erie (stevensville), Ontario L0S 1S0
Canada
Fort Erie (stevensville), Ontario L0S 1S0
Canada
Land for sale, Vacant Land
Property Size: 2,143.946 m2 ::
23,078 sqft
Sale price per sqm: 0
Remarks:
Great Investment opportunity! Golden opportunity to bring back the nostalgia of once was at this prime corner property in the quaint village of Stevensville. 18 units in total, combination of 4 commercial and 14 residential units to be built. SITE PLAN APPROVED. GRANTS AVAILABLE FROM THE MUNICIPALITY. Buyer responsible for own due diligence. (id:42016)
Location:
2567 STEVENSVILLE ROAD, Fort Erie (stevensville), Ontario L0S 1S0, Canada
Listed By CENTURY 21 Heritage House Ltd. Brokerage
The Land for sale, Vacant Land located at 2567 STEVENSVILLE ROAD, Fort Erie (stevensville), Ontario L0S 1S0, Canada is currently for sale. 2567 STEVENSVILLE ROAD, Fort Erie (stevensville), Ontario L0S 1S0, Canada is listed for $999,500 CAD. This property has 23,078 sqft. If the property located at 2567 STEVENSVILLE ROAD, Fort Erie (stevensville), Ontario L0S 1S0, Canada isn't what you're looking for, search Ontario Real Estate to see other Land For Sale in Fort Erie (stevensville).





