SWIPE FOR MORE IMAGES
211 W MORRIS Avenue
Hammond, Louisiana 70403
USA
Hammond, Louisiana 70403
USA
55.74 m2 ::
600 sqft
Commercial for lease, Other Commercial Property
Sale price per sqm: 0
Remarks:
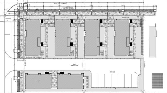
Commercial office space in prime Downtown Hammond location. Estimated completion end of 2026. 600 & 900sf spaces available. Owner/Agent
Features:
- Cooling System: Central AC
Location:
211 W MORRIS Avenue, Hammond, Louisiana 70403, USA
Listed By CENTURY 21 J. Carter & Company
The Commercial for lease, Other Commercial Property located at 211 W MORRIS Avenue, Hammond, Louisiana 70403, USA is currently for rent. 211 W MORRIS Avenue, Hammond, Louisiana 70403, USA is listed for . This property has 600 sqft. If the property located at 211 W MORRIS Avenue, Hammond, Louisiana 70403, USA isn't what you're looking for, search Louisiana Real Estate to see other Commercial For Lease in Hammond.
