SWIPE FOR MORE IMAGES
$1,600,000 USD
203 S 8th Street
Santa Paula, California 93060
USA
Santa Paula, California 93060
USA
Commercial for Sale, Other Commercial Property
Sale price per sqm: 0
Remarks:
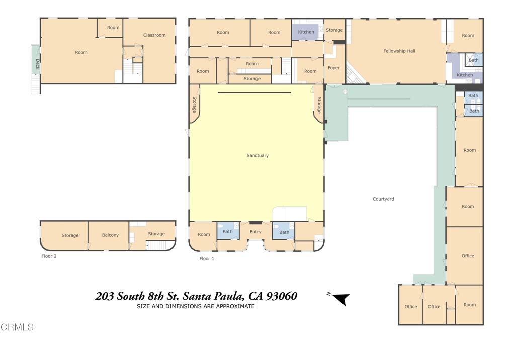
Lucrative opportunity to own and operate this very versatile building with over 10 office spaces to use or rent out to different small businesses to be able work or meet clients. Business individuals who can not afford or do not need a full building can rent a space within this awesome building. Located walking distances from downtown and public parking. Main building is approx. 2750 SQFT, with two restrooms on first floor and additional rooms and storage on second floor. Building has been utilized as a church for the past few decades, also once a preschool, possibility even a theatre at one time. Fellowship hall with full kitchen, fire place and large storage room. Additional 2736 feet of office space in rear of building which also includes a kitchenette. The single story building is approx. 2938 square feet with classrooms, private offices, Current patio and play area can be used for parking. This congregation has outgrown the building and looking for bigger building to continue to grow.
Features:
- Year Built: 1940
Location:
203 S 8th Street, Santa Paula, California 93060, USA
Listed By CENTURY 21 Masters
The Commercial for Sale, Other Commercial Property located at 203 S 8th Street, Santa Paula, California 93060, USA is currently for sale. 203 S 8th Street, Santa Paula, California 93060, USA is listed for $1,600,000 USD. If the property located at 203 S 8th Street, Santa Paula, California 93060, USA isn't what you're looking for, search California Real Estate to see other Commercial For Sale in Santa Paula.
