SWIPE FOR MORE IMAGES
$589,000 USD
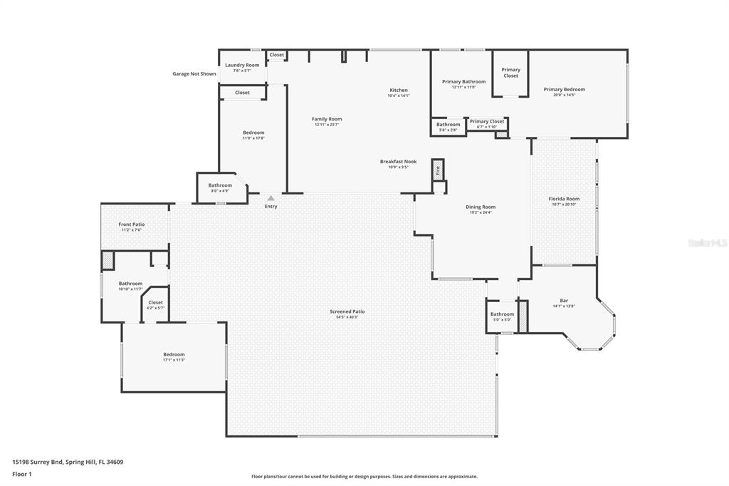
15198 Surrey Bend
Spring Hill, Florida 34609
USA
Spring Hill, Florida 34609
USA
259.005 m2 ::
2,788 sqft
3 bedrooms
3 full baths, 1 half bath
Residential For Sale, Single Family Detached
Land size: 0.17 ha ::
0.42 acres
Sale price per sqm: 2,274.01
Remarks:
Motivated seller!
Welcome to Silverthorn's hidden gem... this coveted cabana-style home is tucked away on one of the community's few peaceful cul-de-sacs, offering an extraordinary blend of privacy, elegance, and Florida living at its finest. This stunning home redefines the concept of indoor-outdoor living — a true entertainer's dream!
This one is all sun, sand and sea! Step inside your front doors, and you'll be welcomed by a courtyard pool oasis, at the heart of the home, providing a seamless flow between the main residence and the guest wing. Additionally, you'll find the stylish Casita, perfect for overnight guests, in-laws, or a private home office retreat. Unique to this property, the knock-down wall design allows you to open the pool area to enjoy lush tropical gardens, filling the space with light and fresh air while maintaining your perfect sense of privacy.
All living areas of the home open up to the central cabana/pool area... talk about dinner with a view! Living areas are large and light-filled. The rear of the home boasts a 3-seasons room with a wall full of windows, allowing so much natural light to flow in. The bonus flex room overlooks the serene Par 3 #15 golf hole, offering one of the most picturesque views in all of Silverthorn — the ideal spot for morning coffee or evening sunsets. Whether hosting a lively party or enjoying a quiet afternoon swim, this home is designed for those who love to live, relax and entertain effortlessly. You'll also appreciate the efficiency of this home - paid-in-full solar and newer appliances keep utilities low.
Beyond your front door, the Silverthorn community offers a warm and social lifestyle — from its vibrant pickleball community to the challenging golf course that winds through rolling greens. Excitement is in the air as the new Silverthorn Bar & Grille owners revitalize the heart of the neighborhood, bringing back a local favorite spot to gather with friends for casual beverages, delicious dinners and community connection. Silverthorn provides the perfect blend of having all conveniences - shopping, dining, all that Nature Coast has to offer - within minutes, while still enjoying a serene, quiet neighborhood feel.
Come take a look at 15198 Surrey Bend and you'll quickly realize that this is not just a home - it's your own personal Florida retreat.
Welcome to Silverthorn's hidden gem... this coveted cabana-style home is tucked away on one of the community's few peaceful cul-de-sacs, offering an extraordinary blend of privacy, elegance, and Florida living at its finest. This stunning home redefines the concept of indoor-outdoor living — a true entertainer's dream!
This one is all sun, sand and sea! Step inside your front doors, and you'll be welcomed by a courtyard pool oasis, at the heart of the home, providing a seamless flow between the main residence and the guest wing. Additionally, you'll find the stylish Casita, perfect for overnight guests, in-laws, or a private home office retreat. Unique to this property, the knock-down wall design allows you to open the pool area to enjoy lush tropical gardens, filling the space with light and fresh air while maintaining your perfect sense of privacy.
All living areas of the home open up to the central cabana/pool area... talk about dinner with a view! Living areas are large and light-filled. The rear of the home boasts a 3-seasons room with a wall full of windows, allowing so much natural light to flow in. The bonus flex room overlooks the serene Par 3 #15 golf hole, offering one of the most picturesque views in all of Silverthorn — the ideal spot for morning coffee or evening sunsets. Whether hosting a lively party or enjoying a quiet afternoon swim, this home is designed for those who love to live, relax and entertain effortlessly. You'll also appreciate the efficiency of this home - paid-in-full solar and newer appliances keep utilities low.
Beyond your front door, the Silverthorn community offers a warm and social lifestyle — from its vibrant pickleball community to the challenging golf course that winds through rolling greens. Excitement is in the air as the new Silverthorn Bar & Grille owners revitalize the heart of the neighborhood, bringing back a local favorite spot to gather with friends for casual beverages, delicious dinners and community connection. Silverthorn provides the perfect blend of having all conveniences - shopping, dining, all that Nature Coast has to offer - within minutes, while still enjoying a serene, quiet neighborhood feel.
Come take a look at 15198 Surrey Bend and you'll quickly realize that this is not just a home - it's your own personal Florida retreat.
Features:
- Exercise Room
- Exercise Room
- Year Built: 2000
- Recreational Features: Tennis Court, Basketball Courts, Playground
- Area amenities: Golf course, Pool
- Association/Community Features Description: Clubhouse, Gated community
- Garage Spaces: 2
Location:
15198 Surrey Bend, Spring Hill, Florida 34609, USA
Listed By CENTURY 21 Integra
The Residential For Sale, Single Family Detached located at 15198 Surrey Bend, Spring Hill, Florida 34609, USA is currently for sale. 15198 Surrey Bend, Spring Hill, Florida 34609, USA is listed for $589,000 USD. This property has 3 bedrooms, 3 full baths, 1 half bath and 2,788 sqft. If the property located at 15198 Surrey Bend, Spring Hill, Florida 34609, USA isn't what you're looking for, search Florida Real Estate to see other Homes For Sale in Spring Hill.
