NEWLY LISTED
SWIPE FOR MORE IMAGES
$449,900 USD
137 Central Heights Drive
Carrollton, Georgia 30116
USA
Carrollton, Georgia 30116
USA
185.614 m2 ::
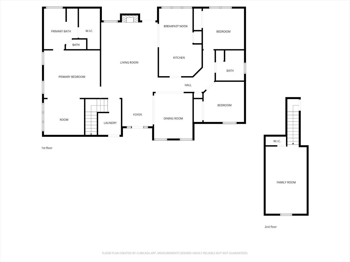
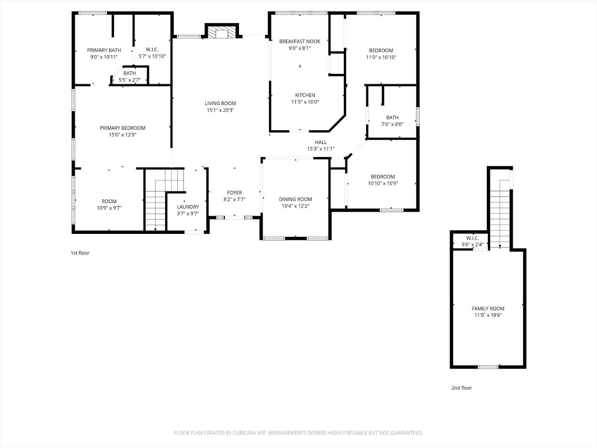
1,998 sqft
4 bedrooms
2 full baths
Residential For Sale, Single Family Detached
Land size: 0.384 ha ::
0.95 acres
Sale price per sqm: 2,423.77
Tax: 3,524.13 USD
Remarks:
Welcome to this 4-bed / 2-bath home located in the sought-after Central Heights neighborhood in Carrollton. This home offers almost a full acre of land, with a great backyard space and swimming pool! Interior features of the home include: bedrooms on the main level with a bonus bedroom/playroom upstairs, kitchen level entry off the garage with a mudroom and laundry area, stainless steel kitchen appliances, solid surface counter tops, dedicated dining area with room for a large table, and a wood-burning fireplace. Vaulted ceilings, an office nook, double vanities, a whirlpool bath, and walk-in closets are featured in the primary suite. This home is within the Central school district, less than a mile from all three schools. Shopping, dining, and major travel routes are also very convenient to this property.
Features:
- Style: 1 1/2 Story
Location:
137 Central Heights Drive, Carrollton, Georgia 30116, USA
Listed By CENTURY 21 Novus
The Residential For Sale, Single Family Detached located at 137 Central Heights Drive, Carrollton, Georgia 30116, USA is currently for sale. 137 Central Heights Drive, Carrollton, Georgia 30116, USA is listed for $449,900 USD. This property has 4 bedrooms, 2 full baths and 1,998 sqft. If the property located at 137 Central Heights Drive, Carrollton, Georgia 30116, USA isn't what you're looking for, search Georgia Real Estate to see other Homes For Sale in Carrollton.
