SWIPE FOR MORE IMAGES
$3,400 USD
13615 Teal Bluff Lane
Houston, Texas 77077
USA
Houston, Texas 77077
USA
250.83 m2 ::
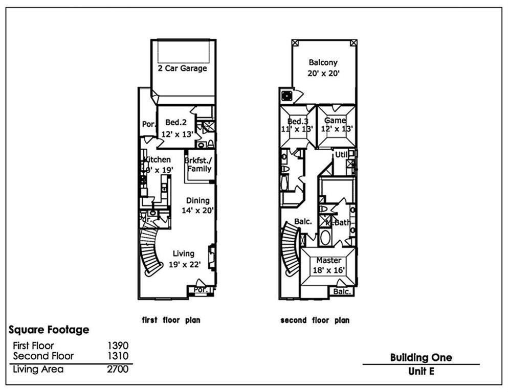
2,700 sqft
3 bedrooms
3 full baths, 1 half bath
Residential For Rent, Townhouse
Sale price per sqm: 13.55
Remarks:
TOWNHOME is built by premium builder KICKERILLO and is available for rent. Stunning stucco home in a 24/7 gated/guarded community. The parkway is a wonderful opportunity to live alongside million-dollar homes at a great price point. This two-story corner home features a second-floor master suite with one bedroom down and a total of three bedrooms. All bedrooms are very spacious with walk-in closets and a private bathroom. Premium carpet, tile flooring, an open floor plan, and a gourmet kitchen. Lease includes Washer, Dryer, and Refrigerator. The community offers a tennis court, pool, and kids' recreation area. Just 5 mins to The Village School. Great Energy Corridor location only mins to I-10 Frwy or Westpark Toll Road.
Features:
- Rooms: 3
- Year Built: 2017
- Number of Levels: 2
- Number of parking spaces: 2
Location:
13615 Teal Bluff Lane, Houston, Texas 77077, USA
Listed By CENTURY 21 Western Realty
The Residential For Rent, Townhouse located at 13615 Teal Bluff Lane, Houston, Texas 77077, USA is currently for rent. 13615 Teal Bluff Lane, Houston, Texas 77077, USA is listed for $3,400 USD. This property has 3 bedrooms, 3 full baths, 1 half bath and 2,700 sqft. If the property located at 13615 Teal Bluff Lane, Houston, Texas 77077, USA isn't what you're looking for, search Texas Real Estate to see other Homes For Lease in Houston.
