NEWLY LISTED
SWIPE FOR MORE IMAGES
$7,250,000 CAD
11 MONTRESSOR DRIVE
Toronto (st. Andrew-windfields), Ontario M2P 1Y9
Canada
Toronto (st. Andrew-windfields), Ontario M2P 1Y9
Canada
7 bedrooms
9 full baths, 1 half bath
Residential For Sale, Single Family
Sale price per sqm: 0
Remarks:
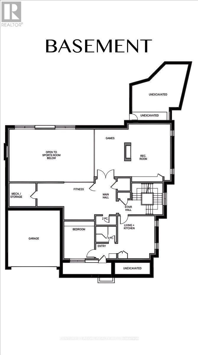
An exceptional opportunity to purchase a brand new, custom-built luxury home in the prestigious St. Andrew-Windfields neighbourhood, situated on a rare ravine-backed lot of approximately 12,800 sq. ft. This offering allows a buyer to acquire the property as a fully designed and approved new build, with all architectural plans, engineering, and approvals already completed and a reputable builder prepared to deliver the home. The approved design features over 7,600 sq. ft. of living space, thoughtfully planned to maximize scale, natural light, and the ravine setting. All major pre-construction work has been completed, including architectural design by Contempo Studio, HVAC and grading design, and building permit submission-providing a streamlined path from purchase to construction. Buyers benefit from significantly reduced timelines and risk compared to starting a custom build from scratch. The home design includes grand principal rooms, high ceilings, elevator provision, expansive outdoor terraces, and a backyard concept ideal for entertaining and enjoying the natural surroundings. Finishes may be customized within the builder's specifications, offering a balance of personalization and certainty. A rare chance to secure a brand new luxury residence without the typical delays associated with design, approvals, and permitting. Full drawings, specifications, and build details available . This lot is shovel ready and waiting for you! (id:42016)
Features:
- Heating System: Forced Air
- Cooling System: Central Air Conditioning (zoned)
Location:
11 MONTRESSOR DRIVE, Toronto (st. Andrew-windfields), Ontario M2P 1Y9, Canada
Listed By CENTURY 21 Regal Realty Inc. Brokerage
The Residential For Sale, Single Family located at 11 MONTRESSOR DRIVE, Toronto (st. Andrew-windfields), Ontario M2P 1Y9, Canada is currently for sale. 11 MONTRESSOR DRIVE, Toronto (st. Andrew-windfields), Ontario M2P 1Y9, Canada is listed for $7,250,000 CAD. This property has 7 bedrooms, 9 full baths, 1 half bath. If the property located at 11 MONTRESSOR DRIVE, Toronto (st. Andrew-windfields), Ontario M2P 1Y9, Canada isn't what you're looking for, search Ontario Real Estate to see other Homes For Sale in Toronto (st. Andrew-windfields).












