SWIPE FOR MORE IMAGES
$199,000 USD
1035 Ethel
Hancock, Michigan 49930
USA
Hancock, Michigan 49930
USA
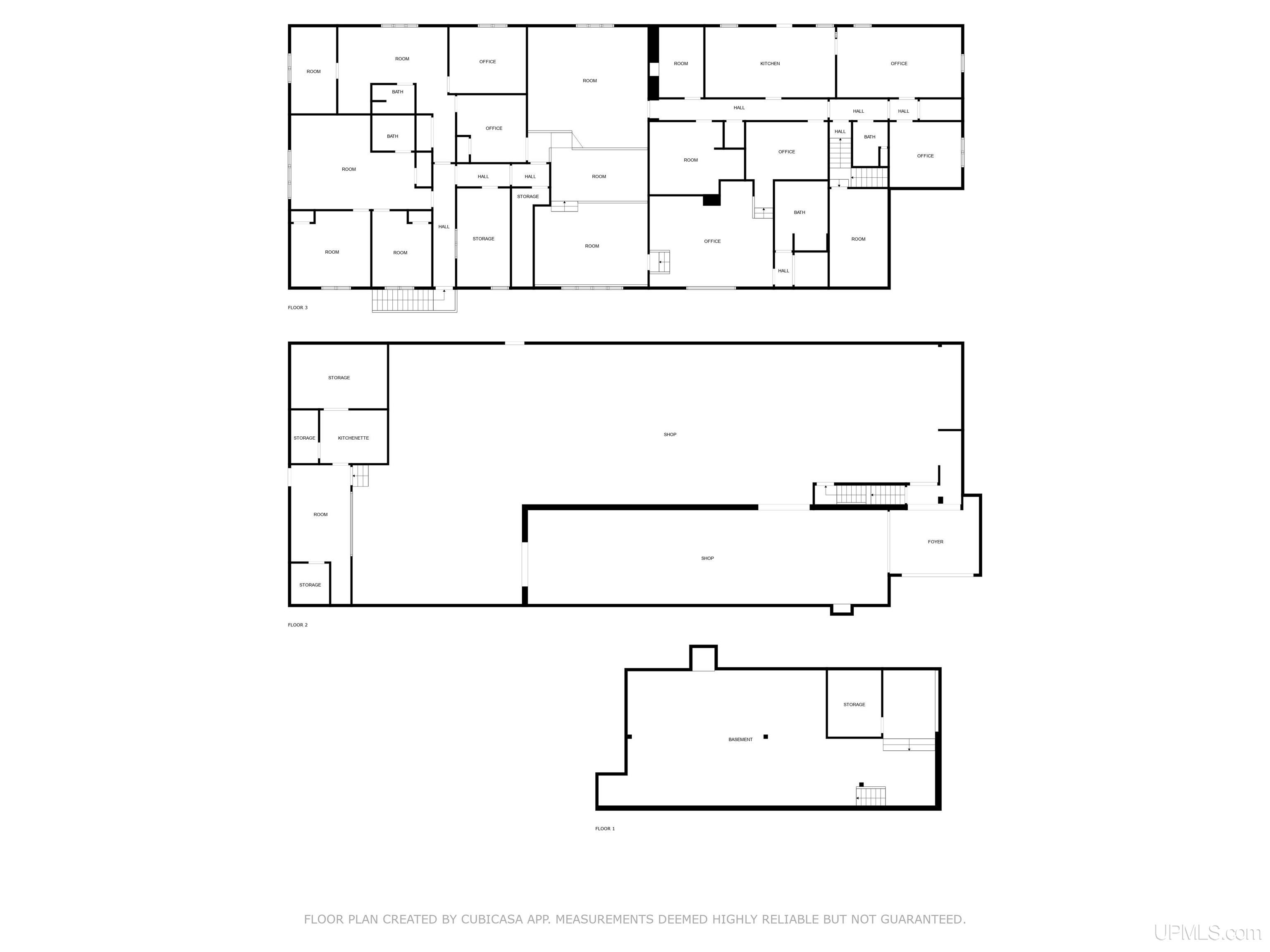
875.304 m2 ::
9,422 sqft
Commercial for Sale, Other Commercial Property
Sale price per sqm: 227.34
Remarks:
*** Seller is encouraging reasonable offers for their consideration!! *** Redevelopment opportunity in West Hancock! This building has over 9,000+/- square feet of potential! Previous uses have been mixed with commercial and multi-family. Building is situated on a corner lot and has paved parking. Roof age is estimated as follows: flat membrane roof 19+/- years; South 1/2 of shingled roof 11 years; North 1/2 of shingled roof 20+. Heating system: New furnace installed August 2020 for the main level store. Store water heater installed around 2020+/-. Convenient location to the Hancock Schools, U.P. Health System ‹“ Portage, Laurn Grove Park, recreational trails and the Houghton County Arena and Fairgrounds. The upper level has potential for 3-4 apartments. Heat: Main store area is forced air. Upper level is electric baseboard. Seller would entertain an offer including any personal property or other items remaining at the time of closing. Seller reserves the right to sell or remove any personal property, shelving, equipment etc. prior to closing, unless otherwise agreed upon in a written offer. Seller will be removing the murals from the exterior of the building. Seller is selling AS-IS. Restriction on use for future owners that will run with the land: No future use shall be for grocery, deli, natural foods, vitamins or supplements or other related goods that would be deemed competition to the services of The Keweenaw Cooperative, Inc. as operating in the new location at 610 Quincy St, Hancock, MI. This wording is subject to updating by Seller's attorney prior to closing and with prior notice to the Buyer. NOTICE: All information believed accurate but not warranted. Buyer recommended to inspect & verify all aspects of the property & bares all risks for any inaccuracies including but not limited to estimated acreage, lot location/size, square footage, utilities (availability & costs associated). Real estate taxes are subject to change (possibly significant) & municipality reassessment after sale. Buyer should NOT assume that buyer's tax bills will be similar to the seller's current tax bills. Taxes are not zero. Audio/video recording devices may be present on property and entering the property shall be considered consent to be recorded. OFFERS: 72 hours response time requested on offers. Seller, at seller's sole discretion, with or without notice, reserves the right to set and/or modify offer submission & response deadlines.
Features:
- Year Built: 1900
- Utilities: City water, Municipal Water
- Heating System: Gas
- Lot Description: Corner Lot
Location:
1035 Ethel, Hancock, Michigan 49930, USA
Listed By CENTURY 21 Affiliated
The Commercial for Sale, Other Commercial Property located at 1035 Ethel, Hancock, Michigan 49930, USA is currently for sale. 1035 Ethel, Hancock, Michigan 49930, USA is listed for $199,000 USD. This property has 9,422 sqft. If the property located at 1035 Ethel, Hancock, Michigan 49930, USA isn't what you're looking for, search Michigan Real Estate to see other Commercial For Sale in Hancock.
