Residential For Rent: Japan Miyazaki 都城市 早水町
NEWLY LISTED
SWIPE FOR MORE IMAGES

¥40,000 JPY

早水町
都城市, Miyazaki 885-0016
Japan
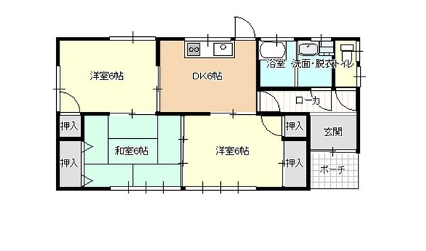
667.6 sqft :: 62.02 m2
3 bedrooms
Total number of rooms: 3
Residential For Rent, Single Family Home
Sale price per sqm: 4.04
CENTURY 21 ほっとらいふ不動産 (宅建免許番号:宮崎県知事(2)4897)
宮崎県都城市郡元町3260番地1
Japan
Phone: +81-986-36-7829
Fax: +81-986-36-7683

Yes, I would like more information from C21. Please use and/or share my information with a C21 Agent to contact me about my real estate needs.

By clicking Contact Office, I agree a C21 Agent may contact me by phone or text message including by automated means about real estate services, and that I can access real estate services without providing my phone number. I acknowledge that I have read and agree to the Terms of Use and Privacy Policy.

Remarks: [Translate *]

【情報更新日】:2026年04月06日, 【有効期限】:2026年04月13日, 【沿線】:日豊本線, 【最寄駅】:都城, 【徒歩】:25分, 【礼金】:なし, 【敷金】:2ヶ月, 【保険要否】:加入要, 【建物構造】:木造, 【築年月】:1982年09月, 【借家権種類】:普通借家権, 【部屋の向き】:南, 【ガス】:LPG, 【水道】:公営水道, 【汚水】:個別浄化槽, 【風呂】:有, 【トイレ】:水洗, 【取引態様】:代理, 【引渡条件】:即引渡し可, 【部屋現況】:空き, 【賃貸保証】:加入要, 【賃貸保証料】:50%, 【保証人代行会社】:アルファー, 【物件コード】:189501-153c
Directions:

Features:

  • Rooms: 3
  • Kitchen-Dining Combo
  • Kitchen-Dining Combo
  • Year Built: 1982
  • Number of Levels: 1
  • Elementary School: [祝吉小学校]
  • Junior High School: [祝吉中学校]

Location:

早水町, 都城市, Miyazaki 885-0016, Japan
Listed By CENTURY 21 ほっとらいふ不動産 (宅建免許番号:宮崎県知事(2)4897)

The Residential For Rent, Single Family Home located at 早水町, 都城市, Miyazaki 885-0016, Japan is currently for rent. 早水町, 都城市, Miyazaki 885-0016, Japan is listed for ¥40,000 JPY. This property has 3 bedrooms and 62.02 m2. If the property located at 早水町, 都城市, Miyazaki 885-0016, Japan isn't what you're looking for, search Miyazaki Real Estate to see other Homes For Lease in 都城市.

Large Photo